Witte Residence Hall Renovation
March 2017 – August 2019
In the News: Witte Hall renovation inspired by CEE capstone students’ design
Witte Residence Hall, which opened in 1964, was a two-tower structure that was home to 1,150 residents in double rooms. University Housing planned a major renovation to this building over a two-year span to address mechanical issues, improve resident spaces, and upgrade facilities.
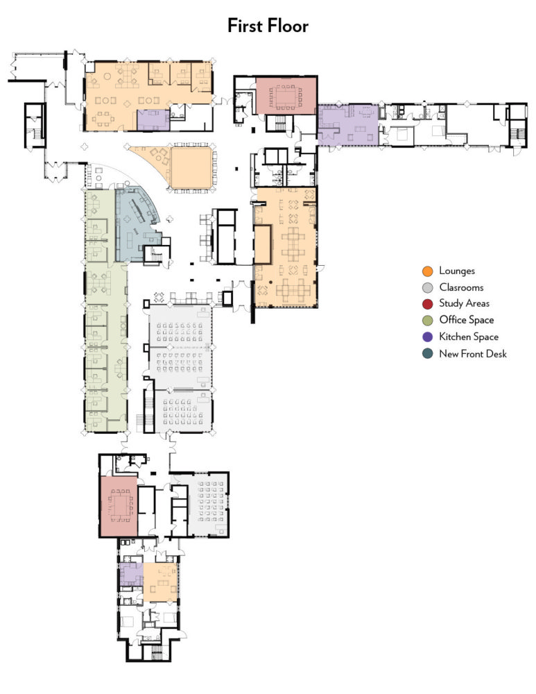
A new connecting link was built to connect the two towers of Witte on all floors, including new elevators and new floor lounges in this central section. New, expanded bathrooms were created on each resident floor. A new resident floor was added to the top of the building to compensate for resident rooms that were displaced by the renovations. The first floor and basement levels also saw upgrades, including improved classroom, kitchen, laundry, and studying spaces.
Heating, ventilation, and air conditioning (HVAC) systems were replaced, adding individual temperature controls in rooms and air conditioning throughout the building (including resident rooms). All windows were replaced to make the building more energy-efficient. Additional upgrades included replacing electrical systems, plumbing, security, and fire safety systems, carpeting of all resident rooms, and updates to painting and lighting.













