Bradley Residence Hall
650 Elm Drive | Madison, WI 53706-1127 | Map

246 residents
Mixed coed floors
Doubles & quads
Opened 1959
Bradley is a popular option for students starting their Wisconsin Experience at UW-Madison. It’s home to the Spark Learning Community, which allows you to learn how UW–Madison is inspired to create solutions to community needs and understand how communities use campus innovations to benefit people, culture, and places.
Bradley is located across the street from Four Lakes Market, tutoring services, a satellite clinic for University Health Services, and a media center, all housed within Dejope Residence Hall. Bradley is nestled right up against beautiful Lake Mendota, and fitness-minded students can work out at the stunning new Bakke Center and take advantage of sand volleyball, tennis, and basketball courts.

Related Pages

Features
- Nearest Dining: Four Lakes Market
- Classroom: First Floor, Dejope Residence Hall
- Academic Advising: First Floor, Dejope Residence Hall
- Hall Desk: First Floor, Dejope Residence Hall
- Kitchen: Lower Level
- Laundry: Lower Level
- Music Practice Room: Lower Level
- Carpeting in Resident Rooms: Yes
- Air Conditioning in Resident Rooms: No
- Room Rate: Low
- Neighborhood: Lakeshore
- Bathrooms Shared By: Floor Wing
- Single Use Bathrooms: Yes (Two on Lower Level)
Note: services and building amenities can vary by building and are subject to change.
Communities

Spark Learning Community
(one floor of Bradley Residence Hall)
Get involved in real campus projects that benefit Wisconsin’s people, culture, and places.
Room Types
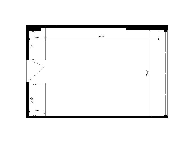
Double
- Features: two closets, two beds, two desks, two desk chairs, two dressers, refrigerator
- Typical Dimensions: ~ 10′ 4.5″ x 13′ 9.5″
Note: this virtual tour was photographed before all rooms in Bradley had carpeting installed in summer 2019.






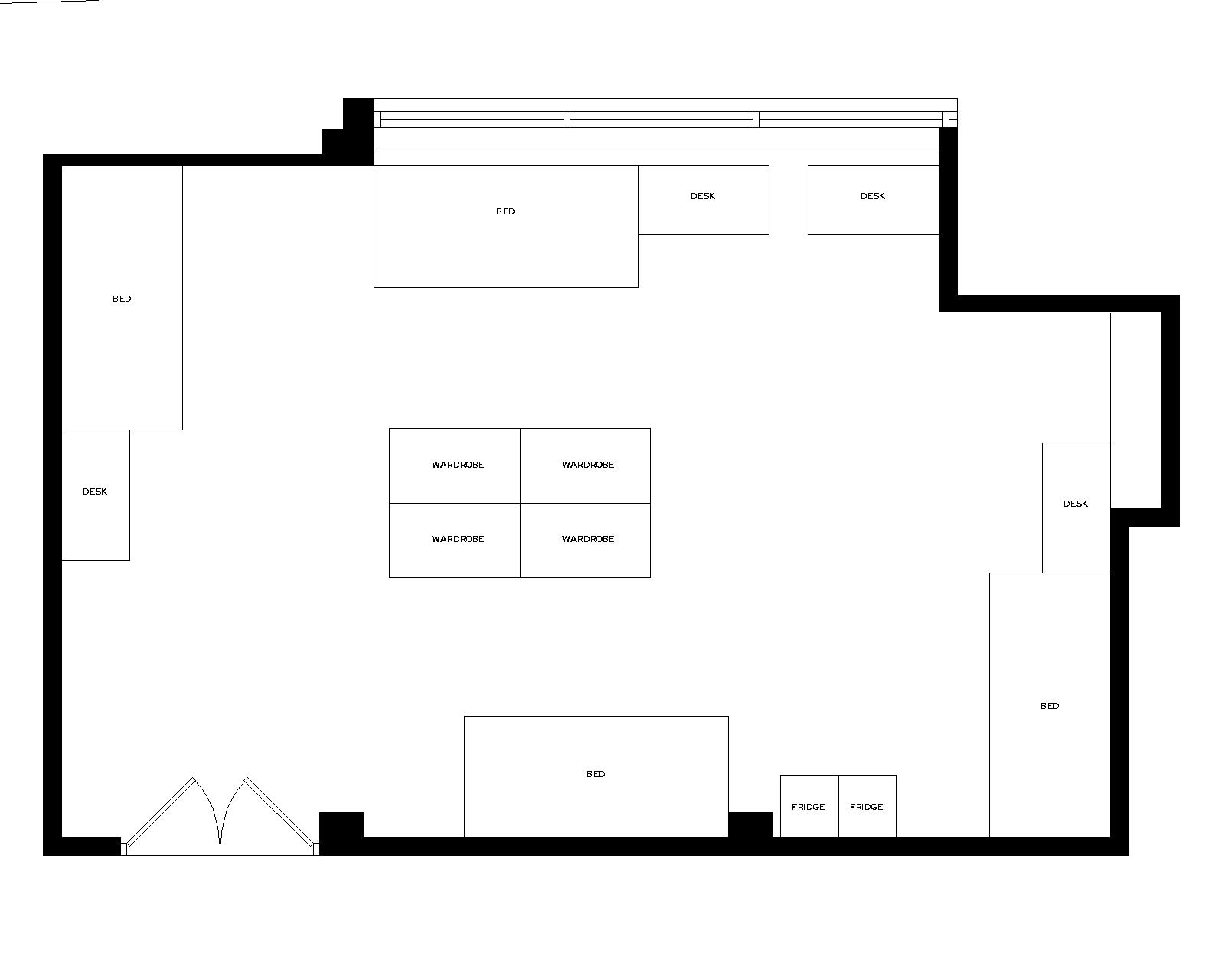
Quad
- Features: four wardrobes, four beds, four desks, four desk chairs, four dressers, two refrigerators
- Typical Dimensions: ~ 23′ 6.5″ x 14′ 1″


Note: typical room dimensions shown. Rooms vary slightly.
Measurements
Residence Halls Furniture Measurements
| Building | |||||||||
|---|---|---|---|---|---|---|---|---|---|
| wdt_ID | Residence Hall | Building | Bed Frame | Mattress | Desk | Lockable Drawer in Desk | Dresser | Bookshelf | Wardrobe |
| 1 | Adams | Adams | 86" x 38" x 60"(max height) | 36" x 80" x 7" | 50" x 24" x 30"# | 15" x 18" x 22" | 30" x 24" x 30" | 24" x 12" x 30" | N/A |
| 2 | Barnard | Barnard | 86" x 38" x 60"(max height) | 36" x 80" x 7" | 50" x 24" x 30"# | 32" x 18" x 3.5" | 30" x 24" x 30" | 24" x 12" x 30" | N/A |
| 3 | Bradley | Bradley | Floors 1-3: 85" x 38" x 38" Floor 4: 85" x 39" x 34" | Floors 1-3: 36" x 80" x 7" Floor 4: 36" x 80" x 7" | Floors 1-3: 42" x 22" x 30" Floor 4: 42" x 22" x 30" | Floor 4: 34" x 21" x 8.5" | Floors 1-3: 30" x 24" x 30" Floor 4: 42" x 22" x 30" | N/A | N/A |
| 4 | Chadbourne | Chadbourne | 85" x 38" x 38" | 36" x 80" x 7" | 36" x 24" x 29" | 20" x 18.5" x 3.5" | 24" x 20" x 48" | 24" x 12" x 29" | N/A |
| 5 | Cole | Cole | 28" x 86" x 36" | 36" x 80" x 7" | 36" x 24" x 29" | 20" x 18.5" x 3.5" | 24" x 23" x 48" | 24" x 12" x 29" | N/A |
| 7 | Dejope | Dejope | 85" x 38" x 38" | 36" x 80" x 7" | 42" x 24" x 29" | 18.5" x 9.5" x 7.5" | N/A | N/A | Quad: 42" x 76" x 24" Other Rooms: N/A |
| 8 | Humphrey | Humphrey | 86" x 38" x 60"(max height) | 36" x 80" x 7" | 50" x 24" x 30"# | 15" x 18" x 22" | 30" x 24" x 30" | 24" x 12" x 30" | N/A |
| 9 | Kronshage | Kronshage | 86" x 38" x 60"(max height) | 36" x 80" x 7" | 50" x 24" x 30"# | 15" x 18" x 22" | See closet diagram | 24" x 12" x 30" | N/A |
| 10 | Leopold | Leopold | 85" x 38" x 38" | 36" x 80" x 7" | 36" x 24" x 29" | 18.5" x 9.5" x 7.5" | N/A | N/A | N/A |
| 11 | Merit | Merit | 86" x 38" x 38" | 36" x 80" x 7" | 36" x 24" x 29" | 18.5" x 9.5" x 7.5" | 24" x 22" x 48" | 36" x 14" x 29" | N/A |
| 12 | Ogg | Ogg | 85" x 38" x 38" | 36" x 80" x 7" | 42" x 24" x 29" | 18.5" x 9.5" x 7.5" | N/A | N/A | N/A |
| 13 | Phillips | Phillips | 86" x 38" x 38" | 36" x 80" x 7" | 44" x 24" x 29" | 32" x 18" x 3.5" | 30" x 24" x 36" | 36" x 14" x 29" | N/A |
| 14 | Sellery | Sellery | 86" x 38" x 60" (max height) | 36" x 80" x 7" | 50" x 24" x 30"# | 15" x 18" x 22" | N/A | N/A | 42" x 76" x 24" See closet diagram below |
| 15 | Slichter | Slichter | 86" x 38" x 60"(max height) | 36" x 80" x 7" | 50" x 24" x 30"# | 15" x 18" x 22" | N/A | 24" x 12" x 30" | 42" x 76" x 24" See closet diagram below |
| 16 | Smith | Smith | 85" x 38" x 38" | 36" x 80" x 7" | 42" x 24" x 29" | 8.5" x 19.75" x 2.75" | N/A | 24" x 12" x 29" | Single Type B: 24" x 24" x 72" Other Rooms: N/A |
| 17 | Sullivan | Sullivan | 36" x 84" x 60" | 36" x 80" x 7" | 36" x 24" x 29" | 20" x 18.5" x 3.5" | 24" x 22" x 48" | 24" x 12" x 29" | N/A |
| 18 | Tripp | Tripp | 86" x 38" x 60"(max height) | 36" x 80" x 7" | 50" x 24" x 30"# | 15" x 18" x 22" | 30" x 24" x 30" | 24" x 12" x 30" | N/A |
| 19 | Waters | Waters | 84" x 41" x 29" | 36" x 80" x 7" | 36" x 24" x 29" | 32" x 18" x 3.5" | 24" x 23" x 48" | 34" x 12" x 29" | N/A |
| 20 | Witte | Witte | 86" x 38" x 60"(max height) | 36" x 80" x 7" | 50" x 24" x 30"# | 15" x 18" x 22" | N/A | N/A | 42" x 76" x 24" See closet diagram below |
| 21 | Jorns | Jorns | 86" x 38" x 60"(max height) | 36" x 80" x 7" | 50" x 24" x 30"# | 15" x 18" x 22" | 29.5" x 24.25" x 30" | 24" x 12" x 30" | N/A |
| 22 | Lowell | Lowell | 86" x 38" x 60"(max height) | 36" x 80" x 7" | 50" x 24" x 30"# | 32" x 18" x 3.5" | 30" x 24" x 30" | N/A | 42" x 76" x 24" |
| 23 | Smith (6100 wing) | Smith | 86" x 38" x 72"(max height) | 36" x 80" x 7" | 44" x 24" x 30"### | 15" x 18" x 22" | N/A | 24" x 12" x 30" | N/A |
Residence Halls Miscellaneous Measurements
| wdt_ID | Residence Hall | Closet Diagram 1 | Closet Diagram 2 | Building | Refrigerator | Freezer | Trash & Recycling Bins | Window Coverings | In-Room Bath Shower Curtain |
|---|---|---|---|---|---|---|---|---|---|
| 1 | Adams | Adams | 14" x 11" x 18.5" | 14" x 11" x 8" | 14" x 10.5" x 15" | Currently unavailable | N/A | ||
| 2 | Barnard | View Diagram | Barnard | 14" x 11" x 18.5" | 14" x 11" x 8" | 14" x 10.5" x 15" | Currently unavailable | N/A | |
| 3 | Bradley | View Diagram | Bradley | 14" x 11" x 18.5" | 14" x 11" x 8" | 14" x 10.5" x 15" | Currently unavailable | N/A | |
| 4 | Chadbourne | View Diagram | Chadbourne | 14" x 11" x 18.5" | 14" x 11" x 8" | 14" x 10.5" x 15" | Currently unavailable | N/A | |
| 5 | Cole | View Diagram | Cole | 14" x 11" x 18.5" | 14" x 11" x 8" | 14" x 10.5" x 15" | Currently unavailable | N/A | |
| 7 | Dejope | View Diagram | View Exterior Diagram | Dejope | 14" x 11" x 18.5" | 14" x 11" x 8" | 14" x 10.5" x 15" | Currently unavailable | N/A |
| 8 | Humphrey | View Diagram | Humphrey | 14" x 11" x 18.5" | 14" x 11" x 8" | 14" x 10.5" x 15" | Currently unavailable | N/A | |
| 9 | Kronshage | View Diagram | View Diagram | Kronshage | 14" x 11" x 18.5" | 14" x 11" x 8" | 14" x 10.5" x 15" | Currently unavailable | N/A |
| 10 | Leopold | View Diagram | View Exterior Diagram | Leopold | 14" x 11" x 18.5" | 14" x 11" x 8" | 14" x 10.5" x 15" | 72" x 48" | N/A |
| 11 | Merit | View Diagram | Merit | 14" x 11" x 18.5" | 14" x 11" x 8" | 14" x 10.5" x 15" | Currently unavailable | Currently unavailable | |
| 12 | Ogg | View Diagram | View Exterior Diagram | Ogg | 14" x 11" x 18.5" | 14" x 11" x 8" | 14" x 10.5" x 15" | Currently unavailable | 36" x 75" |
| 13 | Phillips | Phillips | 14" x 11" x 18.5" | 14" x 11" x 8" | 14" x 10.5" x 15" | Currently unavailable | 40" x 72" | ||
| 14 | Sellery | View Wardrobe Diagram | Sellery | 14" x 11" x 18.5" | 14" x 11" x 8" | 14" x 10.5" x 15" | 2-Window: 80.5" x 45" 3-Window: 121" x 45" |
N/A | |
| 15 | Slichter | View Wardrobe Diagram | Slichter | 14" x 11" x 18.5" | 14" x 11" x 8" | 14" x 10.5" x 15" | Currently unavailable | N/A | |
| 16 | Smith | View Left Diagram | View Right Diagram | Smith | 14" x 11" x 18.5" | 14" x 11" x 8" | 14" x 10.5" x 15" | Single Type B: 58.5" x 71" Others: currently unavailable |
36" x 75" |
| 17 | Sullivan | View Diagram | Sullivan | 14" x 11" x 18.5" | 14" x 11" x 8" | 14" x 10.5" x 15" | Currently unavailable | N/A | |
| 18 | Tripp | Tripp | 14" x 11" x 18.5" | 14" x 11" x 8" | 14" x 10.5" x 15" | Currently unavailable | N/A | ||
| 19 | Waters | View Diagram | Waters | 14" x 11" x 18.5" | 14" x 11" x 8" | 14" x 10.5" x 15" | Currently unavailable | N/A | |
| 20 | Witte | View Wardrobe Diagram | Witte | 14" x 11" x 18.5" | 14" x 11" x 8" | 14" x 10.5" x 15" | Currently unavailable | N/A | |
| 21 | Jorns | View Diagram | Jorns | 14" x 11" x 18.5" | 14" x 11" x 8" | 14" x 10.5" x 15" | Currently unavailable | N/A | |
| 22 | Lowell | View Wardrobe Diagram | Lowell | 14" x 11" x 18.5" | 14" x 11" x 8" | 14" x 10.5" x 15" | Currently unavailable | Currently unavailable |
Residence Halls Lofting Measurements
| wdt_ID | Building | |||||
|---|---|---|---|---|---|---|
| wdt_ID | Residence Hall | Building | Bed Height# | Space Under Bed | Space Between Bed & Ceiling | Length Under Lofted Bed |
| 1 | Adams | Adams | Lofted: 64" Mid-Loft: 33" Standard: 26" |
Lofted: 54" Mid-Loft: 22.75" Standard: 15.75" |
Lofted: 31" Mid-Loft: 63.25" Standard: 69.5" |
Futon ≤ 79" long will fit |
| 2 | Barnard | Barnard | Lofted: 64" Mid-Loft: 33" Standard: 26" |
Lofted: 54" | Currently unavailable | Futon ≤ 79" long will fit |
| 3 | Bradley | Bradley | Lofted: 66" Mid-Loft: 41" Standard: 25" |
Lofted: 56" Mid-Loft: 31" Standard: 16" |
Lofted: 26" Mid-Loft: 51" Standard: 25" |
Futon ≤ 79" long will fit |
| 4 | Chadbourne | Chadbourne | Lofted: 65"-80" Mid-Loft: 42" Standard: 26" |
Lofted: 54"-69" Mid-Loft: 30" Standard: 16" |
Currently unavailable | Futon ≤ 79" long will fit |
| 5 | Cole | Cole | Lofted: 71" Mid-Loft: 62" Standard: 26" |
Lofted: 61.25" Mid-Loft: 52.25" Standard: 16" |
Lofted: 21" Mid-Loft: 30" Standard: 66" |
Futon ≤ 79" long will fit |
| 7 | Dejope | Dejope | Lofted: 78" Mid-Loft: 40" Standard: 28" |
Lofted: 68" Mid-Loft: 30" Standard: 16" |
Lofted: 50" Mid-Loft: 87" Standard: 99" |
Futon ≤ 79" long will fit |
| 8 | Humphrey | Humphrey | Lofted: 64" Mid-Loft: 43" Standard: 25" |
Lofted: 54.25" Mid-Loft: 33.25" Standard: 15.25" |
Lofted: 32" Mid-Loft: 53" Standard: 71" |
Futon ≤ 79" long will fit |
| 9 | Kronshage | Kronshage | Lofted: 64" Mid-Loft: 43" Standard: 25" |
Lofted: 54.25" Mid-Loft: 33.25" Standard: 15.25" |
Lofted: 32" Mid-Loft: 53" Standard: 71" |
Futon ≤ 79" long will fit |
| 10 | Leopold | Leopold | Lofted: 79" Mid-Loft: 67" Standard: 26" |
Lofted: 69" Mid-Loft: 57" Standard: 16" |
Lofted: 46" Mid-Loft: 58" Standard: 99" |
Futon ≤ 79" long will fit |
| 11 | Merit | Merit | Lofted: 64" - 73" Mid-Loft: 41" Standard: 26" |
Lofted: 54" - 69" Mid-Loft: 31" Standard: 16" |
Lofted: 20" - 32" Mid-Loft: 55" Standard: 70" |
Futon ≤ 79" long will fit |
| 12 | Ogg | Ogg | Lofted: 65" - 80" Mid-Loft: 42" Standard: 26" |
Lofted: 54" - 69" Mid-Loft: 30" Standard: 16" |
Lofted: 32" - 47" Mid-Loft: 69" Standard: 85" |
Futon ≤ 79" long will fit |
| 13 | Phillips | Phillips | Lofted: 64" Mid-Loft: 40" Standard: 27" |
Lofted: 54" Mid-Loft: 31" Standard: 15" |
Lofted: 26" Mid-Loft: 53" Standard: 65" |
Futon ≤ 79" long will fit |
| 14 | Sellery | Sellery | Lofted: 64" Mid-Loft: 38.5" Standard: 26.5" |
Lofted: 54" Mid-Loft: 28.5" Standard: 16.5" |
Lofted: 30" Mid-Loft: 55.5" Standard: 67.5" |
Futon ≤ 79" long will fit |
| 15 | Slichter | Slichter | Lofted: 64" Mid-Loft: 33" Standard: 26" |
Lofted: 54" Mid-Loft: 22.75" Standard: 15.75" |
Lofted: 31" Mid-Loft: 63.25" Standard: 69.5" |
Futon ≤ 79" long will fit |
| 16 | Smith | Smith | Lofted: 64" - 79" Mid-Loft: 41" Standard: 28" |
Lofted: 54" - 69" Mid-Loft: 31" Standard: 16" |
Lofted: 52" - 63" Mid-Loft: 85" Standard: 100" |
Futon ≤ 79" long will fit |
| 17 | Sullivan | Sullivan | Lofted: 71" Mid-Loft: 62" Standard: 26" |
Lofted: 61.25" Mid-Loft: 52.25" Standard: 16" |
Lofted: 21" Mid-Loft: 30" Standard: 66" |
Futon ≤ 79" long will fit |
| 18 | Tripp | Tripp | Lofted: 64" Mid-Loft: 33" Standard: 26" |
Lofted: 54" Mid-Loft: 33" Standard: 26" |
Lofted: 31" Mid-Loft: 63.25" Standard: 69.5" |
Futon ≤ 79" long will fit |
| 19 | Waters | Waters | Lofted: 81" Mid-Loft: 65" Standard: 24" |
Lofted: Currently unavailable Mid-Loft: Currently unavailable Standard: Currently unavailable |
Lofted: 21" Mid-Loft: 37" Standard: 78" |
Futon ≤ 56" long will fit |
| 20 | Witte | Witte | Lofted: 64" Mid-Loft: 38.5" Standard: 26.5" |
Lofted: 54" Mid-Loft: 28.5" Standard: 16.5" |
Lofted: 30" Mid-Loft: 55.5" Standard: 67.5" |
Futon ≤ 79" long will fit |
| 21 | Jorns | Jorns | Lofted: 64" Mid-Loft: 43" Standard: 25" |
Lofted: 54.25" Mid-Loft: 33.25" Standard: 15.25" |
Lofted: 32" Mid-Loft: 53" Standard: 71" |
Futon ≤ 79" long will fit |
| 22 | Lowell | Lowell | Lofted: 64" Mid Loft: 33" Standard: 26" |
Lofted: 54" | Currently unavailable | Futon ≤ 79" long will fit |
Note: rooms in some residence halls have mixed furniture. Measurements and dimensions may vary. Due to the variety of residence halls, rooms, furniture, closets, etc. in University Housing, we are unable to provide measurements for all possible situations and items. If the measurement you’re looking for isn’t shown on our website, we are unable to provide it at this time. Measurements for all residence halls can be found on the Inside Our Rooms page.
Rates
The projected annual rates listed below are per resident and include housing during fall and spring breaks (winter break housing is available for an additional fee). Most new residents are assigned to a double room. Costs are billed by semester, combined with the tuition bill. Students select from one of three dining plan options based on their eating habits and how much they plan to dine on campus. For a full listing of residence hall rates and what is included, visit our Billing & Rates page.
Total costs of UW–Madison University Residence Halls room and dining plan rates can be calculated by:
- [Room Rate] + [Dining Plan Rate] = Total Room & Board Costs
| Residence Hall | Building | Room Type | Learning Community | 2025-26 Room Rate / Semester | 2025-26 Room Rate / Academic Year |
|---|---|---|---|---|---|
| Residence Hall | Building | Room Type | Learning Community | 2025-26 Room Rate / Semester | 2025-26 Room Rate / Academic Year |
| Adams | Adams | Single Type A | 4,400.00 | 8,800.00 | |
| Adams | Adams | Single Type B | 4,100.00 | 8,200.00 | |
| Adams | Adams | Double Type A | 4,200.00 | 8,400.00 | |
| Adams | Adams | Double Type B | 3,800.00 | 7,600.00 | |
| Adams | Adams | Triple | 3,550.00 | 7,100.00 | |
| Barnard | Barnard | Single | 4,400.00 | 8,800.00 | |
| Barnard | Barnard | Double Type A | 3,900.00 | 7,800.00 | |
| Barnard | Barnard | Double Type B | 4,200.00 | 8,400.00 | |
| Barnard | Barnard | Double with Bath | 4,350.00 | 8,700.00 | |
| Bradley | Bradley | Double | 3,800.00 | 7,600.00 | |
| Bradley | Bradley | Double | Spark | 3,925.00 | 7,850.00 |
| Bradley | Bradley | Quad | 3,550.00 | 7,100.00 | |
| Bradley | Bradley | Quad | Spark | 3,675.00 | 7,350.00 |
| Chadbourne | Chadbourne | Double | CRC | 4,225.00 | 8,450.00 |
| Chadbourne | Chadbourne | Triple | CRC | 3,825.00 | 7,650.00 |
| Cole | Cole | Single | 4,400.00 | 8,800.00 | |
| Cole | Cole | Double | 3,800.00 | 7,600.00 | |
| Cole | Cole | Double | BioHouse | 3,925.00 | 7,850.00 |
| Cole | Cole | Quad | BioHouse | 3,675.00 | 7,350.00 |
| Dejope | Dejope | Double | 4,400.00 | 8,800.00 | |
| Dejope | Dejope | Triple | 3,750.00 | 7,500.00 | |
| Dejope | Dejope | Quad | 3,750.00 | 7,500.00 | |
| Humphrey | Humphrey | Double | 3,800.00 | 7,600.00 | |
| Jorns | Jorns | Double | 3,800.00 | 7,600.00 | |
| Kronshage | Kronshage | Double | 3,800.00 | 7,600.00 | |
| Kronshage | Kronshage | Double | ILC | 3,925.00 | 7,850.00 |
| Leopold | Leopold | Double | 4,400.00 | 8,800.00 | |
| Leopold | Leopold | Double | GreenHouse | 4,525.00 | 9,050.00 |
| Leopold | Leopold | Triple | 3,750.00 | 7,500.00 | |
| Leopold | Leopold | Triple | GreenHouse | 3,875.00 | 7,750.00 |
| Leopold | Leopold | Quad | 3,750.00 | 7,500.00 | |
| Lowell | Lowell | Single with Bath | 4,950.00 | 9,900.00 | |
| Lowell | Lowell | Single with Shared Bath | 4,200.00 | 8,400.00 | |
| Lowell | Lowell | Double with Bath | 4,500.00 | 9,000.00 | |
| Lowell | Lowell | Double with Shared Bath | 3,800.00 | 7,600.00 | |
| Lowell | Lowell | Triple with Bath Type A | 4,100.00 | 8,200.00 | |
| Lowell | Lowell | Triple with Bath Type B | 3,900.00 | 7,800.00 | |
| Merit | Merit | Single | 4,100.00 | 8,200.00 | |
| Merit | Merit | Double with Bath | 4,350.00 | 8,700.00 | |
| Merit | Merit | Triple with Bath | 3,900.00 | 7,800.00 | |
| Ogg | Ogg | Double with Bath | 4,500.00 | 9,000.00 | |
| Ogg | Ogg | Double with Bath | Business Connect | 4,500.00 | 9,000.00 |
| Ogg | Ogg | Triple | 3,750.00 | 7,500.00 | |
| Ogg | Ogg | Triple | Business Connect | 3,750.00 | 7,500.00 |
| Phillips | Phillips | Single with Bath | 4,500.00 | 9,000.00 | |
| Phillips | Phillips | Single with Bath | Open House | 4,625.00 | 9,250.00 |
| Phillips | Phillips | Double with Bath | 4,350.00 | 8,700.00 | |
| Phillips | Phillips | Double with Bath | Open House | 4,475.00 | 8,950.00 |
| Sellery | Sellery | Single | 4,400.00 | 8,800.00 | |
| Sellery | Sellery | Single | StartUp | 4,525.00 | 9,050.00 |
| Sellery | Sellery | Single | The Studio | 4,537.50 | 9,075.00 |
| Sellery | Sellery | Double | 4,200.00 | 8,400.00 | |
| Sellery | Sellery | Double | StartUp | 4,325.00 | 8,650.00 |
| Sellery | Sellery | Double | The Studio | 4,337.50 | 8,675.00 |
| Sellery | Sellery | Triple | 4,050.00 | 8,100.00 | |
| Sellery | Sellery | Triple | StartUp | 4,175.00 | 8,350.00 |
| Sellery | Sellery | Triple | The Studio | 4,187.50 | 8,375.00 |
| Sellery | Sellery | Quad | 3,750.00 | 7,500.00 | |
| Sellery | Sellery | Quad | StartUp | 3,875.00 | 7,750.00 |
| Sellery | Sellery | Quad | The Studio | 3,887.50 | 7,775.00 |
| Slichter | Slichter | Double | 3,800.00 | 7,600.00 | |
| Slichter | Slichter | Double with Bath | 4,350.00 | 8,700.00 | |
| Smith | Smith | Single Type A | 4,800.00 | 9,600.00 | |
| Smith | Smith | Single Type B | 4,400.00 | 8,800.00 | |
| Smith | Smith | Single with Bath | 4,950.00 | 9,900.00 | |
| Smith | Smith | Double Type A | 4,400.00 | 8,800.00 | |
| Smith | Smith | Double Type B | 4,100.00 | 8,200.00 | |
| Smith | Smith | Double with Bath | 4,500.00 | 9,000.00 | |
| Smith | Smith | Triple | 3,750.00 | 7,500.00 | |
| Sullivan | Sullivan | Double | 3,800.00 | 7,600.00 | |
| Sullivan | Sullivan | Quad | 3,550.00 | 7,100.00 | |
| Tripp | Tripp | Single Type A | 4,400.00 | 8,800.00 | |
| Tripp | Tripp | Single Type B | 4,100.00 | 8,200.00 | |
| Tripp | Tripp | Double Type B | 3,800.00 | 7,600.00 | |
| Tripp | Tripp | Triple | 3,550.00 | 7,100.00 | |
| Waters | Waters | Single | 4,400.00 | 8,800.00 | |
| Waters | Waters | Single | WISE | 4,525.00 | 9,050.00 |
| Waters | Waters | Single with Bath | WISE | 4,625.00 | 9,250.00 |
| Waters | Waters | Double | 3,900.00 | 7,800.00 | |
| Waters | Waters | Double | WISE | 4,025.00 | 8,050.00 |
| Waters | Waters | Double with Bath | 4,350.00 | 8,700.00 | |
| Witte | Witte | Single | 4,400.00 | 8,800.00 | |
| Witte | Witte | Single | MLC | 4,525.00 | 9,050.00 |
| Witte | Witte | Double | 4,200.00 | 8,400.00 | |
| Witte | Witte | Double | MLC | 4,325.00 | 8,650.00 |
| Witte | Witte | Quad | 3,750.00 | 7,500.00 | |
| Witte | Witte | Quad | MLC | 3,875.00 | 7,750.00 |
| wdt_ID | Dining Plan | 2025-26 Dining Plan Rate / Semester | 2025-26 Dining Plan Rate / Academic Year |
|---|---|---|---|
| 1 | Go10 | 2,050 | 4,100 |
| 2 | Go14 | 2,300 | 4,600 |
| 3 | GoUnlimited | 2,900 | 5,800 |
Photos








Note: rooms in some residence halls have mixed furniture. Furniture, measurements, and dimensions may vary from what is shown.
Heating & Cooling
Heating

In Bradley, hot water is pumped through convector units near the window in your room for heat. During heating season, our goal is to keep your room at a comfortable range from 65 – 75 °F. A knob (see photo) in resident rooms controls the heat in resident rooms. To increase heat, turn the dial left (counterclockwise) and right (clockwise) to decrease heat.
Cooling
In Bradley, air-conditioning is only provided in common areas such as dens, lounges, and kitchens. Residents can request permission to bring their own portable air conditioner if they qualify for a medical need.
Tips
- Try small adjustments first to avoid overheating/cooling
- Do not push furniture, bedding, or belongings against convectors as this could block airflow
- When in your room during the heating season, open curtains and blinds during the day to allow the sun to warm the room naturally and prevent air from being trapped against the window, and close them at night to decrease drafts — during the cooling season, do the reverse
- Keep doors and windows closed when the heat or air conditioning is on
- Consider using blankets and sweaters instead of turning up the heat
- Open windows slightly for short periods of time to allow outside air to circulate
- When possible, keep the room door open to promote air movement and introduce fresh air
- Take wet clothing or towels to a laundry room to be washed/dried ASAP to reduce moisture
- Run a fan to help circulate air
- Fish tanks, plants, humidifiers, and diffusers can contribute to humidity/moisture levels in your room
- Know how to use Moisture Absorbing Hangers in your room and make sure to replace them when they’re full. More information can be found in this document about Using Moisture Absorbing Hangers in Your Room.



