Merit Residence Hall
917, 919, 921 W Dayton Street | Madison, WI 53715-1126 | Map

68 residents
Mixed coed floors
Singles, doubles, & triples
Opened 1986
Merit is a small community that allows you to benefit from activities and services of the University Residence Halls while enjoying increased independence and flexibility that comes with single room or suite-style living. You’ll also enjoy the convenience of being near the Kohl Center and Gordon Avenue Market.
In addition, all residents of Merit enjoy carpeted rooms with air conditioning as well as some rooms with private bathrooms. With its close proximity to many academic buildings, the shops of State Street, and Union South, you’ll always be close to campus happenings and never too far from class.

Related Pages

Features
- Nearest Dining: Gordon Avenue Market
- Classroom: First Floor, Ogg Residence Hall
- Academic Advising: First Floor, Ogg Residence Hall
- Hall Desk: First Floor, Sellery Residence Hall
- Kitchen: Each Floor
- Laundry: First Floor
- Music Practice Room: Lower Level, Ogg Residence Hall
- Carpeting in Resident Rooms: Yes
- Air Conditioning in Resident Rooms: Yes
- Room Rate: High
- Neighborhood: Southeast
- Bathrooms Shared By: Room or Cluster of Six Rooms
- Single Use Bathrooms: Yes (one on first floor)
Note: services and building amenities can vary by building and are subject to change.
Room Types
Single
Type A
- Features: closet, bed, bookcase, desk, desk chair, dresser, refrigerator
- Typical Dimensions: ~ 10′ x 8′ 10″






Type B
- Features: bed, bookcase, desk, desk chair, dresser, refrigerator
- Typical Dimensions: ~ 13′ x 17′ 10″


With Bath
- Features: closet, bed, bookcase, desk, desk chair, dresser, refrigerator


Double with Bath
- Features: two closets, kitchen area with sink, counter, and shelf, two beds, two bookcases, two desks, two desk chairs, two dressers, refrigerator
- Typical Dimensions: ~ 17′ 8″ x 17′ 6.5″






Triple with Bath
- Room: 100
- Features: three beds, three desks, three desk chairs, three dressers, two refrigerators


Note: typical room dimensions shown. Rooms vary slightly.
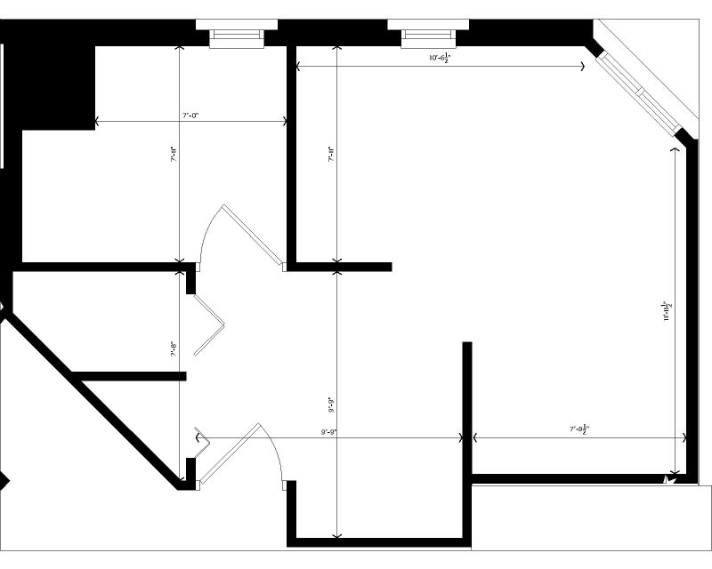
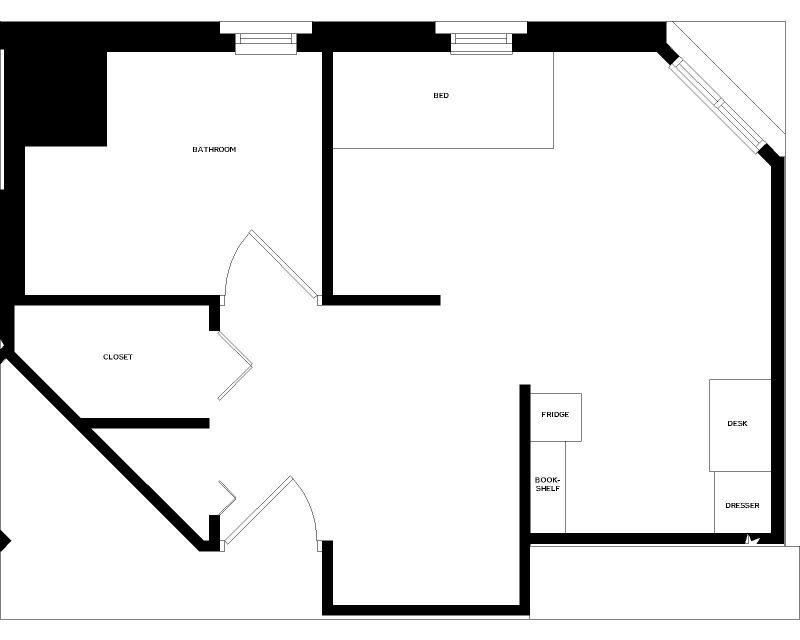
Floor Plans



B: Bathroom | SR: Staff Room | SWB: Single With Bath | S-A: Single Type-A | S-B: Single Type-B | DWB: Double With Bath | TWB: Triple With Bath
Measurements
Residence Halls Furniture Measurements
| Building | |||||||||
|---|---|---|---|---|---|---|---|---|---|
| wdt_ID | Residence Hall | Building | Bed Frame | Mattress | Desk | Lockable Drawer in Desk | Dresser | Bookshelf | Wardrobe |
| 1 | Adams | Adams | 86" x 38" x 60"(max height) | 36" x 80" x 7" | 50" x 24" x 30"# | 15" x 18" x 22" | 30" x 24" x 30" | 24" x 12" x 30" | N/A |
| 2 | Barnard | Barnard | 86" x 38" x 60"(max height) | 36" x 80" x 7" | 50" x 24" x 30"# | 32" x 18" x 3.5" | 30" x 24" x 30" | 24" x 12" x 30" | N/A |
| 3 | Bradley | Bradley | Floors 1-3: 85" x 38" x 38" Floor 4: 85" x 39" x 34" | Floors 1-3: 36" x 80" x 7" Floor 4: 36" x 80" x 7" | Floors 1-3: 42" x 22" x 30" Floor 4: 42" x 22" x 30" | Floor 4: 34" x 21" x 8.5" | Floors 1-3: 30" x 24" x 30" Floor 4: 42" x 22" x 30" | N/A | N/A |
| 4 | Chadbourne | Chadbourne | 85" x 38" x 38" | 36" x 80" x 7" | 36" x 24" x 29" | 20" x 18.5" x 3.5" | 24" x 20" x 48" | 24" x 12" x 29" | N/A |
| 5 | Cole | Cole | 28" x 86" x 36" | 36" x 80" x 7" | 36" x 24" x 29" | 20" x 18.5" x 3.5" | 24" x 23" x 48" | 24" x 12" x 29" | N/A |
| 7 | Dejope | Dejope | 85" x 38" x 38" | 36" x 80" x 7" | 42" x 24" x 29" | 18.5" x 9.5" x 7.5" | N/A | N/A | Quad: 42" x 76" x 24" Other Rooms: N/A |
| 8 | Humphrey | Humphrey | 86" x 38" x 60"(max height) | 36" x 80" x 7" | 50" x 24" x 30"# | 15" x 18" x 22" | 30" x 24" x 30" | 24" x 12" x 30" | N/A |
| 9 | Kronshage | Kronshage | 86" x 38" x 60"(max height) | 36" x 80" x 7" | 50" x 24" x 30"# | 15" x 18" x 22" | See closet diagram | 24" x 12" x 30" | N/A |
| 10 | Leopold | Leopold | 85" x 38" x 38" | 36" x 80" x 7" | 36" x 24" x 29" | 18.5" x 9.5" x 7.5" | N/A | N/A | N/A |
| 11 | Merit | Merit | 86" x 38" x 38" | 36" x 80" x 7" | 36" x 24" x 29" | 18.5" x 9.5" x 7.5" | 24" x 22" x 48" | 36" x 14" x 29" | N/A |
| 12 | Ogg | Ogg | 85" x 38" x 38" | 36" x 80" x 7" | 42" x 24" x 29" | 18.5" x 9.5" x 7.5" | N/A | N/A | N/A |
| 13 | Phillips | Phillips | 86" x 38" x 38" | 36" x 80" x 7" | 44" x 24" x 29" | 32" x 18" x 3.5" | 30" x 24" x 36" | 36" x 14" x 29" | N/A |
| 14 | Sellery | Sellery | 86" x 38" x 60" (max height) | 36" x 80" x 7" | 50" x 24" x 30"# | 15" x 18" x 22" | N/A | N/A | 42" x 76" x 24" See closet diagram below |
| 15 | Slichter | Slichter | 86" x 38" x 60"(max height) | 36" x 80" x 7" | 50" x 24" x 30"# | 15" x 18" x 22" | N/A | 24" x 12" x 30" | 42" x 76" x 24" See closet diagram below |
| 16 | Smith | Smith | 85" x 38" x 38" | 36" x 80" x 7" | 42" x 24" x 29" | 8.5" x 19.75" x 2.75" | N/A | 24" x 12" x 29" | Single Type B: 24" x 24" x 72" Other Rooms: N/A |
| 17 | Sullivan | Sullivan | 36" x 84" x 60" | 36" x 80" x 7" | 36" x 24" x 29" | 20" x 18.5" x 3.5" | 24" x 22" x 48" | 24" x 12" x 29" | N/A |
| 18 | Tripp | Tripp | 86" x 38" x 60"(max height) | 36" x 80" x 7" | 50" x 24" x 30"# | 15" x 18" x 22" | 30" x 24" x 30" | 24" x 12" x 30" | N/A |
| 19 | Waters | Waters | 84" x 41" x 29" | 36" x 80" x 7" | 36" x 24" x 29" | 32" x 18" x 3.5" | 24" x 23" x 48" | 34" x 12" x 29" | N/A |
| 20 | Witte | Witte | 86" x 38" x 60"(max height) | 36" x 80" x 7" | 50" x 24" x 30"# | 15" x 18" x 22" | N/A | N/A | 42" x 76" x 24" See closet diagram below |
| 21 | Jorns | Jorns | 86" x 38" x 60"(max height) | 36" x 80" x 7" | 50" x 24" x 30"# | 15" x 18" x 22" | 29.5" x 24.25" x 30" | 24" x 12" x 30" | N/A |
| 22 | Lowell | Lowell | 86" x 38" x 60"(max height) | 36" x 80" x 7" | 50" x 24" x 30"# | 32" x 18" x 3.5" | 30" x 24" x 30" | N/A | 42" x 76" x 24" |
| 23 | Smith (6100 wing) | Smith | 86" x 38" x 72"(max height) | 36" x 80" x 7" | 44" x 24" x 30"### | 15" x 18" x 22" | N/A | 24" x 12" x 30" | N/A |
Residence Halls Miscellaneous Measurements
| wdt_ID | Residence Hall | Closet Diagram 1 | Closet Diagram 2 | Building | Refrigerator | Freezer | Trash & Recycling Bins | Window Coverings | In-Room Bath Shower Curtain |
|---|---|---|---|---|---|---|---|---|---|
| 1 | Adams | Adams | 14" x 11" x 18.5" | 14" x 11" x 8" | 14" x 10.5" x 15" | Currently unavailable | N/A | ||
| 2 | Barnard | View Diagram | Barnard | 14" x 11" x 18.5" | 14" x 11" x 8" | 14" x 10.5" x 15" | Currently unavailable | N/A | |
| 3 | Bradley | View Diagram | Bradley | 14" x 11" x 18.5" | 14" x 11" x 8" | 14" x 10.5" x 15" | Currently unavailable | N/A | |
| 4 | Chadbourne | View Diagram | Chadbourne | 14" x 11" x 18.5" | 14" x 11" x 8" | 14" x 10.5" x 15" | Currently unavailable | N/A | |
| 5 | Cole | View Diagram | Cole | 14" x 11" x 18.5" | 14" x 11" x 8" | 14" x 10.5" x 15" | Currently unavailable | N/A | |
| 7 | Dejope | View Diagram | View Exterior Diagram | Dejope | 14" x 11" x 18.5" | 14" x 11" x 8" | 14" x 10.5" x 15" | Currently unavailable | N/A |
| 8 | Humphrey | View Diagram | Humphrey | 14" x 11" x 18.5" | 14" x 11" x 8" | 14" x 10.5" x 15" | Currently unavailable | N/A | |
| 9 | Kronshage | View Diagram | View Diagram | Kronshage | 14" x 11" x 18.5" | 14" x 11" x 8" | 14" x 10.5" x 15" | Currently unavailable | N/A |
| 10 | Leopold | View Diagram | View Exterior Diagram | Leopold | 14" x 11" x 18.5" | 14" x 11" x 8" | 14" x 10.5" x 15" | 72" x 48" | N/A |
| 11 | Merit | View Diagram | Merit | 14" x 11" x 18.5" | 14" x 11" x 8" | 14" x 10.5" x 15" | Currently unavailable | Currently unavailable | |
| 12 | Ogg | View Diagram | View Exterior Diagram | Ogg | 14" x 11" x 18.5" | 14" x 11" x 8" | 14" x 10.5" x 15" | Currently unavailable | 36" x 75" |
| 13 | Phillips | Phillips | 14" x 11" x 18.5" | 14" x 11" x 8" | 14" x 10.5" x 15" | Currently unavailable | 40" x 72" | ||
| 14 | Sellery | View Wardrobe Diagram | Sellery | 14" x 11" x 18.5" | 14" x 11" x 8" | 14" x 10.5" x 15" | 2-Window: 80.5" x 45" 3-Window: 121" x 45" |
N/A | |
| 15 | Slichter | View Wardrobe Diagram | Slichter | 14" x 11" x 18.5" | 14" x 11" x 8" | 14" x 10.5" x 15" | Currently unavailable | N/A | |
| 16 | Smith | View Left Diagram | View Right Diagram | Smith | 14" x 11" x 18.5" | 14" x 11" x 8" | 14" x 10.5" x 15" | Single Type B: 58.5" x 71" Others: currently unavailable |
36" x 75" |
| 17 | Sullivan | View Diagram | Sullivan | 14" x 11" x 18.5" | 14" x 11" x 8" | 14" x 10.5" x 15" | Currently unavailable | N/A | |
| 18 | Tripp | Tripp | 14" x 11" x 18.5" | 14" x 11" x 8" | 14" x 10.5" x 15" | Currently unavailable | N/A | ||
| 19 | Waters | View Diagram | Waters | 14" x 11" x 18.5" | 14" x 11" x 8" | 14" x 10.5" x 15" | Currently unavailable | N/A | |
| 20 | Witte | View Wardrobe Diagram | Witte | 14" x 11" x 18.5" | 14" x 11" x 8" | 14" x 10.5" x 15" | Currently unavailable | N/A | |
| 21 | Jorns | View Diagram | Jorns | 14" x 11" x 18.5" | 14" x 11" x 8" | 14" x 10.5" x 15" | Currently unavailable | N/A | |
| 22 | Lowell | View Wardrobe Diagram | Lowell | 14" x 11" x 18.5" | 14" x 11" x 8" | 14" x 10.5" x 15" | Currently unavailable | Currently unavailable |
Residence Halls Lofting Measurements
| wdt_ID | Building | |||||
|---|---|---|---|---|---|---|
| wdt_ID | Residence Hall | Building | Bed Height# | Space Under Bed | Space Between Bed & Ceiling | Length Under Lofted Bed |
| 1 | Adams | Adams | Lofted: 64" Mid-Loft: 33" Standard: 26" |
Lofted: 54" Mid-Loft: 22.75" Standard: 15.75" |
Lofted: 31" Mid-Loft: 63.25" Standard: 69.5" |
Futon ≤ 79" long will fit |
| 2 | Barnard | Barnard | Lofted: 64" Mid-Loft: 33" Standard: 26" |
Lofted: 54" | Currently unavailable | Futon ≤ 79" long will fit |
| 3 | Bradley | Bradley | Lofted: 66" Mid-Loft: 41" Standard: 25" |
Lofted: 56" Mid-Loft: 31" Standard: 16" |
Lofted: 26" Mid-Loft: 51" Standard: 25" |
Futon ≤ 79" long will fit |
| 4 | Chadbourne | Chadbourne | Lofted: 65"-80" Mid-Loft: 42" Standard: 26" |
Lofted: 54"-69" Mid-Loft: 30" Standard: 16" |
Currently unavailable | Futon ≤ 79" long will fit |
| 5 | Cole | Cole | Lofted: 71" Mid-Loft: 62" Standard: 26" |
Lofted: 61.25" Mid-Loft: 52.25" Standard: 16" |
Lofted: 21" Mid-Loft: 30" Standard: 66" |
Futon ≤ 79" long will fit |
| 7 | Dejope | Dejope | Lofted: 78" Mid-Loft: 40" Standard: 28" |
Lofted: 68" Mid-Loft: 30" Standard: 16" |
Lofted: 50" Mid-Loft: 87" Standard: 99" |
Futon ≤ 79" long will fit |
| 8 | Humphrey | Humphrey | Lofted: 64" Mid-Loft: 43" Standard: 25" |
Lofted: 54.25" Mid-Loft: 33.25" Standard: 15.25" |
Lofted: 32" Mid-Loft: 53" Standard: 71" |
Futon ≤ 79" long will fit |
| 9 | Kronshage | Kronshage | Lofted: 64" Mid-Loft: 43" Standard: 25" |
Lofted: 54.25" Mid-Loft: 33.25" Standard: 15.25" |
Lofted: 32" Mid-Loft: 53" Standard: 71" |
Futon ≤ 79" long will fit |
| 10 | Leopold | Leopold | Lofted: 79" Mid-Loft: 67" Standard: 26" |
Lofted: 69" Mid-Loft: 57" Standard: 16" |
Lofted: 46" Mid-Loft: 58" Standard: 99" |
Futon ≤ 79" long will fit |
| 11 | Merit | Merit | Lofted: 64" - 73" Mid-Loft: 41" Standard: 26" |
Lofted: 54" - 69" Mid-Loft: 31" Standard: 16" |
Lofted: 20" - 32" Mid-Loft: 55" Standard: 70" |
Futon ≤ 79" long will fit |
| 12 | Ogg | Ogg | Lofted: 65" - 80" Mid-Loft: 42" Standard: 26" |
Lofted: 54" - 69" Mid-Loft: 30" Standard: 16" |
Lofted: 32" - 47" Mid-Loft: 69" Standard: 85" |
Futon ≤ 79" long will fit |
| 13 | Phillips | Phillips | Lofted: 64" Mid-Loft: 40" Standard: 27" |
Lofted: 54" Mid-Loft: 31" Standard: 15" |
Lofted: 26" Mid-Loft: 53" Standard: 65" |
Futon ≤ 79" long will fit |
| 14 | Sellery | Sellery | Lofted: 64" Mid-Loft: 38.5" Standard: 26.5" |
Lofted: 54" Mid-Loft: 28.5" Standard: 16.5" |
Lofted: 30" Mid-Loft: 55.5" Standard: 67.5" |
Futon ≤ 79" long will fit |
| 15 | Slichter | Slichter | Lofted: 64" Mid-Loft: 33" Standard: 26" |
Lofted: 54" Mid-Loft: 22.75" Standard: 15.75" |
Lofted: 31" Mid-Loft: 63.25" Standard: 69.5" |
Futon ≤ 79" long will fit |
| 16 | Smith | Smith | Lofted: 64" - 79" Mid-Loft: 41" Standard: 28" |
Lofted: 54" - 69" Mid-Loft: 31" Standard: 16" |
Lofted: 52" - 63" Mid-Loft: 85" Standard: 100" |
Futon ≤ 79" long will fit |
| 17 | Sullivan | Sullivan | Lofted: 71" Mid-Loft: 62" Standard: 26" |
Lofted: 61.25" Mid-Loft: 52.25" Standard: 16" |
Lofted: 21" Mid-Loft: 30" Standard: 66" |
Futon ≤ 79" long will fit |
| 18 | Tripp | Tripp | Lofted: 64" Mid-Loft: 33" Standard: 26" |
Lofted: 54" Mid-Loft: 33" Standard: 26" |
Lofted: 31" Mid-Loft: 63.25" Standard: 69.5" |
Futon ≤ 79" long will fit |
| 19 | Waters | Waters | Lofted: 81" Mid-Loft: 65" Standard: 24" |
Lofted: Currently unavailable Mid-Loft: Currently unavailable Standard: Currently unavailable |
Lofted: 21" Mid-Loft: 37" Standard: 78" |
Futon ≤ 56" long will fit |
| 20 | Witte | Witte | Lofted: 64" Mid-Loft: 38.5" Standard: 26.5" |
Lofted: 54" Mid-Loft: 28.5" Standard: 16.5" |
Lofted: 30" Mid-Loft: 55.5" Standard: 67.5" |
Futon ≤ 79" long will fit |
| 21 | Jorns | Jorns | Lofted: 64" Mid-Loft: 43" Standard: 25" |
Lofted: 54.25" Mid-Loft: 33.25" Standard: 15.25" |
Lofted: 32" Mid-Loft: 53" Standard: 71" |
Futon ≤ 79" long will fit |
| 22 | Lowell | Lowell | Lofted: 64" Mid Loft: 33" Standard: 26" |
Lofted: 54" | Currently unavailable | Futon ≤ 79" long will fit |
Note: rooms in some residence halls have mixed furniture. Measurements and dimensions may vary. Due to the variety of residence halls, rooms, furniture, closets, etc. in University Housing, we are unable to provide measurements for all possible situations and items. If the measurement you’re looking for isn’t shown on our website, we are unable to provide it at this time. Measurements for all residence halls can be found on the Inside Our Rooms page.
Rates
The projected annual rates listed below are per resident and include housing during fall and spring breaks (winter break housing is available for an additional fee). Most new residents are assigned to a double room. Costs are billed by semester, combined with the tuition bill. Students select from one of three dining plan options based on their eating habits and how much they plan to dine on campus. For a full listing of residence hall rates and what is included, visit our Billing & Rates page.
Total costs of UW–Madison University Residence Halls room and dining plan rates can be calculated by:
- [Room Rate] + [Dining Plan Rate] = Total Room & Board Costs
| Residence Hall | Building | Room Type | Learning Community | 2025-26 Room Rate / Semester | 2025-26 Room Rate / Academic Year |
|---|---|---|---|---|---|
| Residence Hall | Building | Room Type | Learning Community | 2025-26 Room Rate / Semester | 2025-26 Room Rate / Academic Year |
| Adams | Adams | Single Type A | 4,400.00 | 8,800.00 | |
| Adams | Adams | Single Type B | 4,100.00 | 8,200.00 | |
| Adams | Adams | Double Type A | 4,200.00 | 8,400.00 | |
| Adams | Adams | Double Type B | 3,800.00 | 7,600.00 | |
| Adams | Adams | Triple | 3,550.00 | 7,100.00 | |
| Barnard | Barnard | Single | 4,400.00 | 8,800.00 | |
| Barnard | Barnard | Double Type A | 3,900.00 | 7,800.00 | |
| Barnard | Barnard | Double Type B | 4,200.00 | 8,400.00 | |
| Barnard | Barnard | Double with Bath | 4,350.00 | 8,700.00 | |
| Bradley | Bradley | Double | 3,800.00 | 7,600.00 | |
| Bradley | Bradley | Double | Spark | 3,925.00 | 7,850.00 |
| Bradley | Bradley | Quad | 3,550.00 | 7,100.00 | |
| Bradley | Bradley | Quad | Spark | 3,675.00 | 7,350.00 |
| Chadbourne | Chadbourne | Double | CRC | 4,225.00 | 8,450.00 |
| Chadbourne | Chadbourne | Triple | CRC | 3,825.00 | 7,650.00 |
| Cole | Cole | Single | 4,400.00 | 8,800.00 | |
| Cole | Cole | Double | 3,800.00 | 7,600.00 | |
| Cole | Cole | Double | BioHouse | 3,925.00 | 7,850.00 |
| Cole | Cole | Quad | BioHouse | 3,675.00 | 7,350.00 |
| Dejope | Dejope | Double | 4,400.00 | 8,800.00 | |
| Dejope | Dejope | Triple | 3,750.00 | 7,500.00 | |
| Dejope | Dejope | Quad | 3,750.00 | 7,500.00 | |
| Humphrey | Humphrey | Double | 3,800.00 | 7,600.00 | |
| Jorns | Jorns | Double | 3,800.00 | 7,600.00 | |
| Kronshage | Kronshage | Double | 3,800.00 | 7,600.00 | |
| Kronshage | Kronshage | Double | ILC | 3,925.00 | 7,850.00 |
| Leopold | Leopold | Double | 4,400.00 | 8,800.00 | |
| Leopold | Leopold | Double | GreenHouse | 4,525.00 | 9,050.00 |
| Leopold | Leopold | Triple | 3,750.00 | 7,500.00 | |
| Leopold | Leopold | Triple | GreenHouse | 3,875.00 | 7,750.00 |
| Leopold | Leopold | Quad | 3,750.00 | 7,500.00 | |
| Lowell | Lowell | Single with Bath | 4,950.00 | 9,900.00 | |
| Lowell | Lowell | Single with Shared Bath | 4,200.00 | 8,400.00 | |
| Lowell | Lowell | Double with Bath | 4,500.00 | 9,000.00 | |
| Lowell | Lowell | Double with Shared Bath | 3,800.00 | 7,600.00 | |
| Lowell | Lowell | Triple with Bath Type A | 4,100.00 | 8,200.00 | |
| Lowell | Lowell | Triple with Bath Type B | 3,900.00 | 7,800.00 | |
| Merit | Merit | Single | 4,100.00 | 8,200.00 | |
| Merit | Merit | Double with Bath | 4,350.00 | 8,700.00 | |
| Merit | Merit | Triple with Bath | 3,900.00 | 7,800.00 | |
| Ogg | Ogg | Double with Bath | 4,500.00 | 9,000.00 | |
| Ogg | Ogg | Double with Bath | Business Connect | 4,500.00 | 9,000.00 |
| Ogg | Ogg | Triple | 3,750.00 | 7,500.00 | |
| Ogg | Ogg | Triple | Business Connect | 3,750.00 | 7,500.00 |
| Phillips | Phillips | Single with Bath | 4,500.00 | 9,000.00 | |
| Phillips | Phillips | Single with Bath | Open House | 4,625.00 | 9,250.00 |
| Phillips | Phillips | Double with Bath | 4,350.00 | 8,700.00 | |
| Phillips | Phillips | Double with Bath | Open House | 4,475.00 | 8,950.00 |
| Sellery | Sellery | Single | 4,400.00 | 8,800.00 | |
| Sellery | Sellery | Single | StartUp | 4,525.00 | 9,050.00 |
| Sellery | Sellery | Double | 4,200.00 | 8,400.00 | |
| Sellery | Sellery | Double | StartUp | 4,325.00 | 8,650.00 |
| Sellery | Sellery | Double | The Studio | 4,337.50 | 8,675.00 |
| Sellery | Sellery | Triple | 4,050.00 | 8,100.00 | |
| Sellery | Sellery | Triple | StartUp | 4,175.00 | 8,350.00 |
| Sellery | Sellery | Triple | The Studio | 4,187.50 | 8,375.00 |
| Sellery | Sellery | Quad | 3,750.00 | 7,500.00 | |
| Sellery | Sellery | Quad | StartUp | 3,875.00 | 7,750.00 |
| Slichter | Slichter | Double | 3,800.00 | 7,600.00 | |
| Slichter | Slichter | Double with Bath | 4,350.00 | 8,700.00 | |
| Smith | Smith | Single Type A | 4,800.00 | 9,600.00 | |
| Smith | Smith | Single Type B | 4,400.00 | 8,800.00 | |
| Smith | Smith | Single with Bath | 4,950.00 | 9,900.00 | |
| Smith | Smith | Double Type A | 4,400.00 | 8,800.00 | |
| Smith | Smith | Double Type B | 4,100.00 | 8,200.00 | |
| Smith | Smith | Double with Bath | 4,500.00 | 9,000.00 | |
| Smith | Smith | Triple | 3,750.00 | 7,500.00 | |
| Sullivan | Sullivan | Double | 3,800.00 | 7,600.00 | |
| Sullivan | Sullivan | Quad | 3,550.00 | 7,100.00 | |
| Tripp | Tripp | Single Type A | 4,400.00 | 8,800.00 | |
| Tripp | Tripp | Single Type B | 4,100.00 | 8,200.00 | |
| Tripp | Tripp | Double Type B | 3,800.00 | 7,600.00 | |
| Tripp | Tripp | Triple | 3,550.00 | 7,100.00 | |
| Waters | Waters | Single | 4,400.00 | 8,800.00 | |
| Waters | Waters | Single | WISE | 4,525.00 | 9,050.00 |
| Waters | Waters | Single with Bath | WISE | 4,625.00 | 9,250.00 |
| Waters | Waters | Double | 3,900.00 | 7,800.00 | |
| Waters | Waters | Double | WISE | 4,025.00 | 8,050.00 |
| Waters | Waters | Double with Bath | 4,350.00 | 8,700.00 | |
| Witte | Witte | Single | 4,400.00 | 8,800.00 | |
| Witte | Witte | Single | MLC | 4,525.00 | 9,050.00 |
| Witte | Witte | Double | 4,200.00 | 8,400.00 | |
| Witte | Witte | Double | MLC | 4,325.00 | 8,650.00 |
| Witte | Witte | Quad | 3,750.00 | 7,500.00 | |
| Witte | Witte | Quad | MLC | 3,875.00 | 7,750.00 |
| wdt_ID | Dining Plan | 2025-26 Dining Plan Rate / Semester | 2025-26 Dining Plan Rate / Academic Year |
|---|---|---|---|
| 1 | Go10 | 2,050 | 4,100 |
| 2 | Go14 | 2,300 | 4,600 |
| 3 | GoUnlimited | 2,900 | 5,800 |
Photos









Note: rooms in some residence halls have mixed furniture. Furniture, measurements, and dimensions may vary from what is shown.
Heating & Cooling
In Merit, heat is provided via hot water and cooling via chilled water through a radiator near your window. Your room’s temperature can be set from 65 – 75 °F and can be changed via a thermostat located on the wall (see photo). Pushing the “up” arrow on the left of the thermostat will warm your room, while pushing the “down” arrow will cool your room. Fan speed is controlled via a switch located under a hinged cover on the upper left corner of the convector unit (see photo). To increase or decrease fan speed, turn the control switch under the hinged cover on the convector unit to the desired setting.

Tips

- Try small adjustments first to avoid overheating/cooling
- Do not push furniture, bedding, or belongings against convectors as this could block airflow
- When in your room during the heating season, open curtains and blinds during the day to allow the sun to warm the room naturally and prevent air from being trapped against the window, and close them at night to decrease drafts — during the cooling season, do the reverse
- Keep doors and windows closed when the heat or air conditioning is on
- Consider using blankets and sweaters instead of turning up the heat
- Open windows slightly for short periods of time to allow outside air to circulate
- When possible, keep the room door open to promote air movement and introduce fresh air
- Take wet clothing or towels to a laundry room to be washed/dried ASAP to reduce moisture
- Run a fan to help circulate air
- Fish tanks, plants, humidifiers, and diffusers can contribute to humidity/moisture levels in your room
- Know how to use Moisture Absorbing Hangers in your room and make sure to replace them when they’re full. More information can be found in this document about Using Moisture Absorbing Hangers in Your Room.