Smith Residence Hall
35 N. Park Street | Madison, WI 53715-1218 | Map

576 residents
Coed by cluster
Singles, doubles, & triples
Opened 2006
While the majority of rooms in Smith are triples, a variety of room types are available — from singles with private bathrooms to doubles. Home to a blend of first-year and non-freshman residents and a full-service Starbucks, some Smith rooms even have views of downtown that catch a glimpse of the Wisconsin State Capitol and Camp Randall Stadium.
Smith rooms are equipped with high ceilings and most feature walk-in closets. Plus, it’s just a few blocks from Gordon Avenue Market, offering residents additional dining options.

Related Pages

Features
- Nearest Dining: Gordon Avenue Market
- Classroom: First Floor
- Academic Advising: First Floor, Ogg Residence Hall
- Hall Desk: First Floor
- Kitchen: Attached to Lounges on Each Resident Floor
- Laundry: First Floor
- Music Practice Room: First Floor
- Carpeting in Resident Rooms: Yes
- Air Conditioning in Resident Rooms: Yes
- Room Rate: High
- Neighborhood: Southeast
- Bathrooms Shared By: Cluster of 3-4 rooms
- Single Use Bathrooms: Yes (one on each resident floor)
- Gender inclusive room options available
Note: services and building amenities can vary by building and are subject to change.
Communities

NDGNS Community
(one wing of Smith)
NDGNS offers all students an opportunity to learn about Indigenous voices and experiences with a focus on building community and relationships.
Room Types
Single
Type A
- Features: double door closet, bed, bookcase, desk, desk chair, refrigerator
- Typical Dimensions: ~ 10′ 7″ x 10′ 3″ or 14′ 2″ x 12′
Note: the decorated virtual tour above was photographed before all rooms in Smith had carpeting installed and when dressers were provided.








Type B
- Features: wardrobe, bed, bookcase, desk, desk chair, refrigerator
- Typical Dimensions: ~ 13′ 10″ x 9′ 6




With Bath
- Features: bathroom with a shower and vanity, double door closet, one bed, one bookcase, one desk, one refrigerator
- Typical Dimensions: ~ 17′ 9″ x 11′ 5″


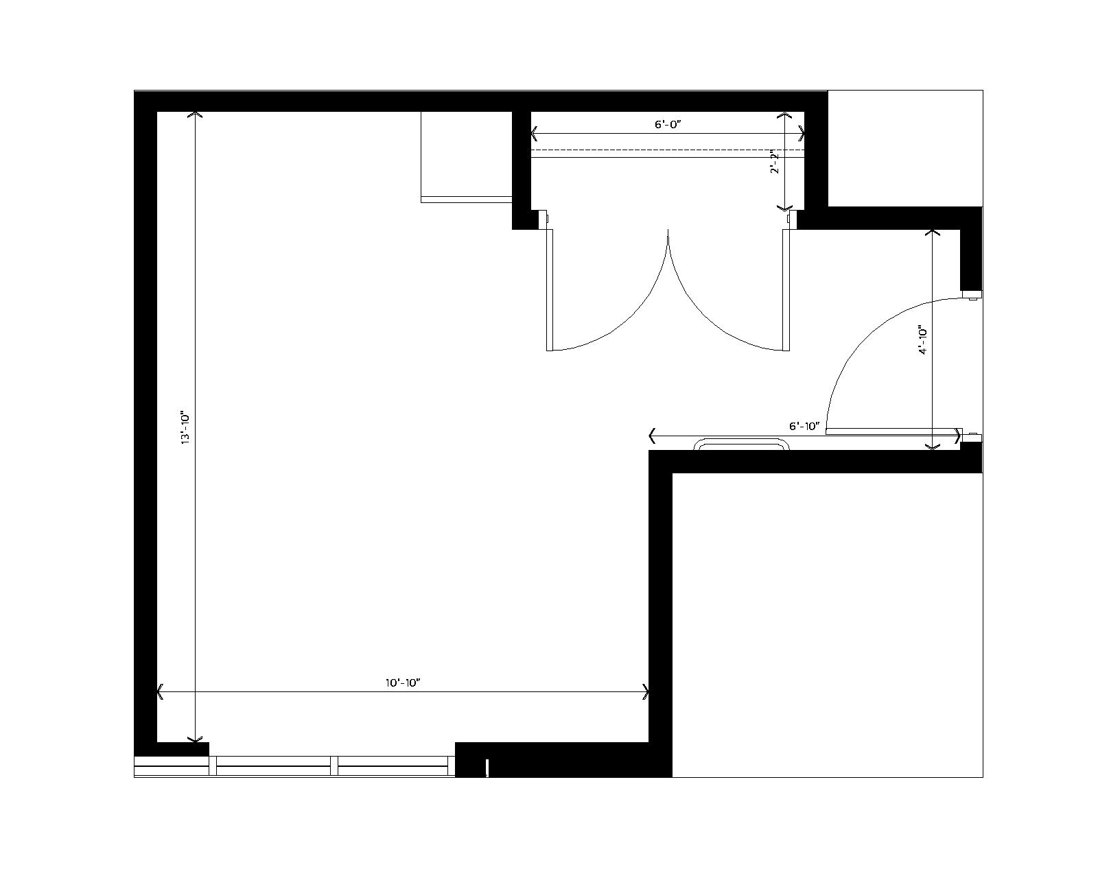
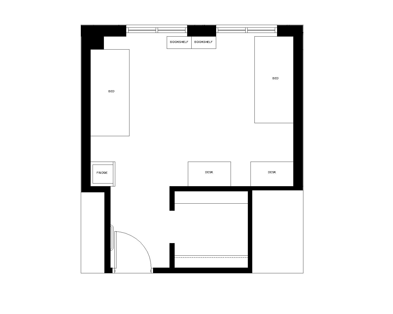
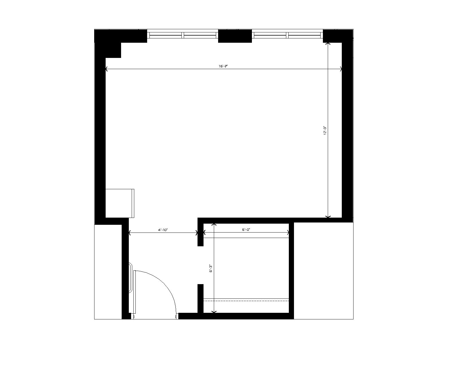
Double
Type A
- Features: walk-in closet, two beds, two bookcases, two desks, two desk chairs, refrigerator
- Typical Dimensions: ~ 13′ 10″ x 10′ 10″





Type B
- Features: double door closet, two beds, two bookcases, two desks, two desk chairs, refrigerator
- Typical Dimensions: ~ 16′ 7″ x 12′ 3″




With Bath
- Features: double door closet, two beds, two bookcases, two desks, two desk chairs, refrigerator, bathroom with a shower and vanity
- Typical Dimensions: ~ 15′ 10″ x 10′ 9″


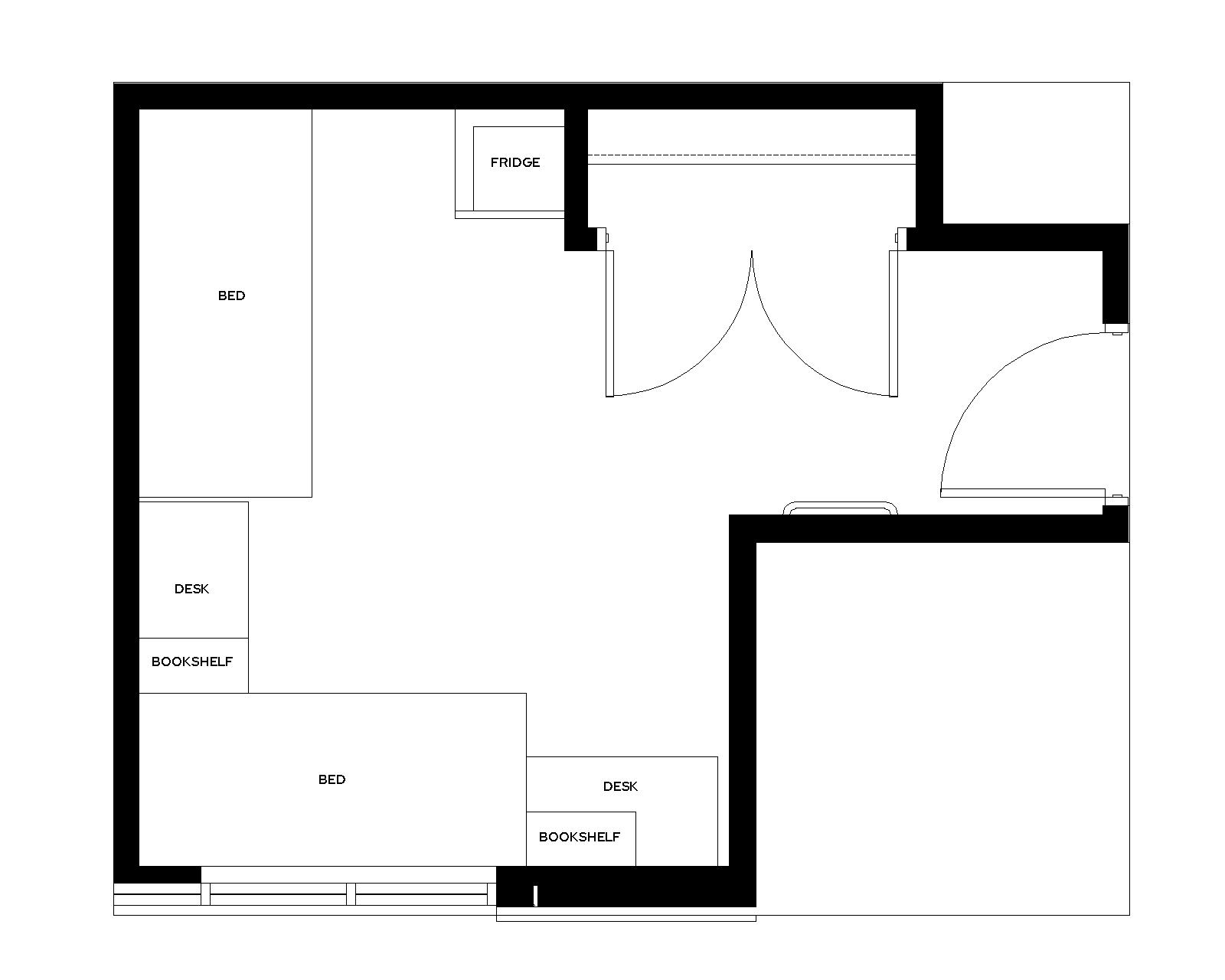
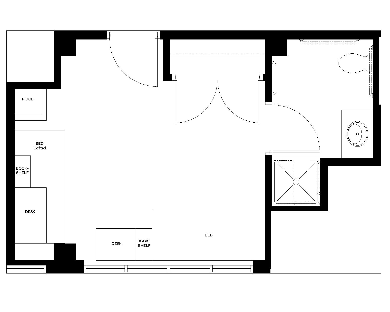
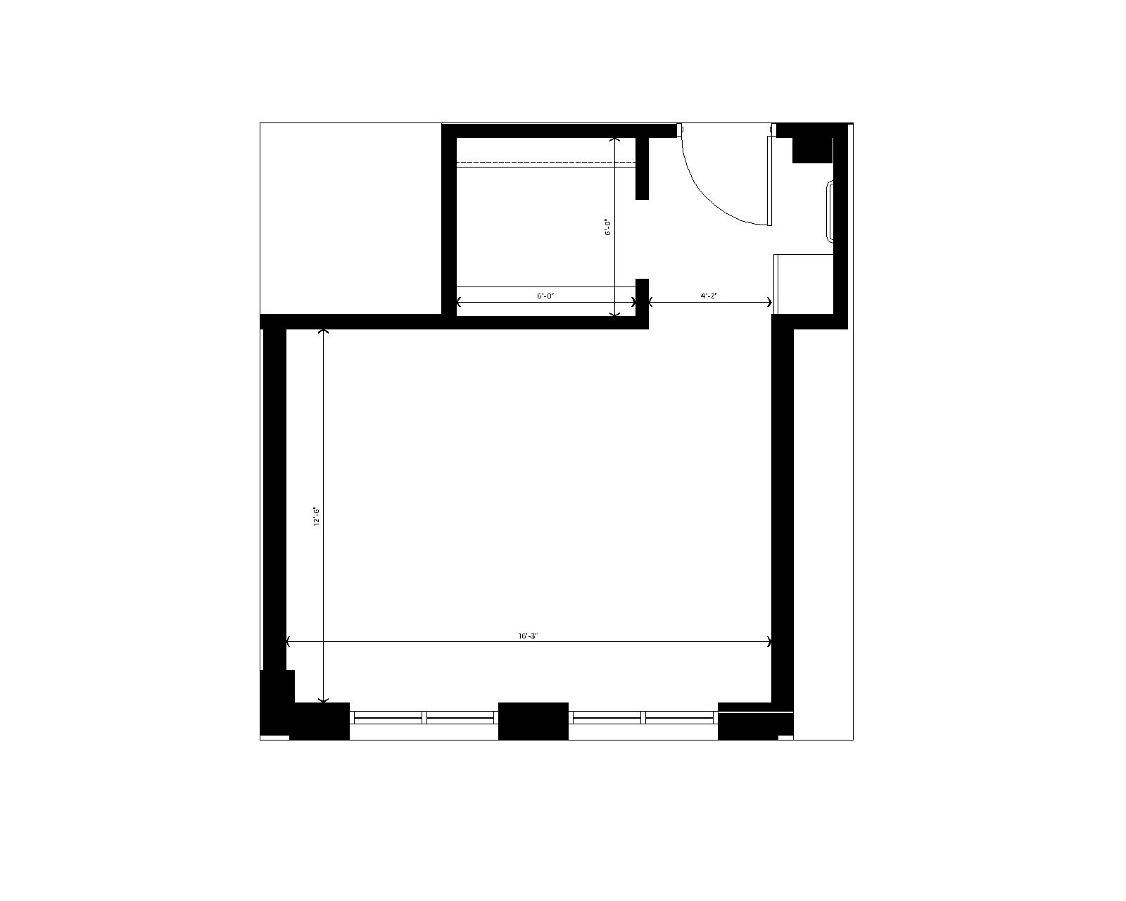
Triple
- Features: walk-in closet, three beds, three bookcases, three desks, two refrigerators
- Typical Dimensions: ~ 16′ 3″ x 12′ 6″









Note: the majority of resident rooms in Smith are triples.
Floor Plans





B: Bathroom | SR: Staff Room | S-A: Single Type A | S-B: Single Type B | SWB: Single with Bath | D-A: Double Type A | D-B: Double Type B | DWB: Double with Bath | T: Triple
Measurements
Residence Halls Furniture Measurements
| Building | |||||||||
|---|---|---|---|---|---|---|---|---|---|
| wdt_ID | Residence Hall | Building | Bed Frame | Mattress | Desk | Lockable Drawer in Desk | Dresser | Bookshelf | Wardrobe |
| 1 | Adams | Adams | 86" x 38" x 60"(max height) | 36" x 80" x 7" | 50" x 24" x 30"# | 15" x 18" x 22" | 30" x 24" x 30" | 24" x 12" x 30" | N/A |
| 2 | Barnard | Barnard | 86" x 38" x 60"(max height) | 36" x 80" x 7" | 50" x 24" x 30"# | 32" x 18" x 3.5" | 30" x 24" x 30" | 24" x 12" x 30" | N/A |
| 3 | Bradley | Bradley | Floors 1-3: 85" x 38" x 38" Floor 4: 85" x 39" x 34" | Floors 1-3: 36" x 80" x 7" Floor 4: 36" x 80" x 7" | Floors 1-3: 42" x 22" x 30" Floor 4: 42" x 22" x 30" | Floor 4: 34" x 21" x 8.5" | Floors 1-3: 30" x 24" x 30" Floor 4: 42" x 22" x 30" | N/A | N/A |
| 4 | Chadbourne | Chadbourne | 85" x 38" x 38" | 36" x 80" x 7" | 36" x 24" x 29" | 20" x 18.5" x 3.5" | 24" x 20" x 48" | 24" x 12" x 29" | N/A |
| 5 | Cole | Cole | 28" x 86" x 36" | 36" x 80" x 7" | 36" x 24" x 29" | 20" x 18.5" x 3.5" | 24" x 23" x 48" | 24" x 12" x 29" | N/A |
| 7 | Dejope | Dejope | 85" x 38" x 38" | 36" x 80" x 7" | 42" x 24" x 29" | 18.5" x 9.5" x 7.5" | N/A | N/A | Quad: 42" x 76" x 24" Other Rooms: N/A |
| 8 | Humphrey | Humphrey | 86" x 38" x 60"(max height) | 36" x 80" x 7" | 50" x 24" x 30"# | 15" x 18" x 22" | 30" x 24" x 30" | 24" x 12" x 30" | N/A |
| 9 | Kronshage | Kronshage | 86" x 38" x 60"(max height) | 36" x 80" x 7" | 50" x 24" x 30"# | 15" x 18" x 22" | See closet diagram | 24" x 12" x 30" | N/A |
| 10 | Leopold | Leopold | 85" x 38" x 38" | 36" x 80" x 7" | 36" x 24" x 29" | 18.5" x 9.5" x 7.5" | N/A | N/A | N/A |
| 11 | Merit | Merit | 86" x 38" x 38" | 36" x 80" x 7" | 36" x 24" x 29" | 18.5" x 9.5" x 7.5" | 24" x 22" x 48" | 36" x 14" x 29" | N/A |
| 12 | Ogg | Ogg | 85" x 38" x 38" | 36" x 80" x 7" | 42" x 24" x 29" | 18.5" x 9.5" x 7.5" | N/A | N/A | N/A |
| 13 | Phillips | Phillips | 86" x 38" x 38" | 36" x 80" x 7" | 44" x 24" x 29" | 32" x 18" x 3.5" | 30" x 24" x 36" | 36" x 14" x 29" | N/A |
| 14 | Sellery | Sellery | 86" x 38" x 60" (max height) | 36" x 80" x 7" | 50" x 24" x 30"# | 15" x 18" x 22" | N/A | N/A | 42" x 76" x 24" See closet diagram below |
| 15 | Slichter | Slichter | 86" x 38" x 60"(max height) | 36" x 80" x 7" | 50" x 24" x 30"# | 15" x 18" x 22" | N/A | 24" x 12" x 30" | 42" x 76" x 24" See closet diagram below |
| 16 | Smith | Smith | 85" x 38" x 38" | 36" x 80" x 7" | 42" x 24" x 29" | 8.5" x 19.75" x 2.75" | N/A | 24" x 12" x 29" | Single Type B: 24" x 24" x 72" Other Rooms: N/A |
| 17 | Sullivan | Sullivan | 36" x 84" x 60" | 36" x 80" x 7" | 36" x 24" x 29" | 20" x 18.5" x 3.5" | 24" x 22" x 48" | 24" x 12" x 29" | N/A |
| 18 | Tripp | Tripp | 86" x 38" x 60"(max height) | 36" x 80" x 7" | 50" x 24" x 30"# | 15" x 18" x 22" | 30" x 24" x 30" | 24" x 12" x 30" | N/A |
| 19 | Waters | Waters | 84" x 41" x 29" | 36" x 80" x 7" | 36" x 24" x 29" | 32" x 18" x 3.5" | 24" x 23" x 48" | 34" x 12" x 29" | N/A |
| 20 | Witte | Witte | 86" x 38" x 60"(max height) | 36" x 80" x 7" | 50" x 24" x 30"# | 15" x 18" x 22" | N/A | N/A | 42" x 76" x 24" See closet diagram below |
| 21 | Jorns | Jorns | 86" x 38" x 60"(max height) | 36" x 80" x 7" | 50" x 24" x 30"# | 15" x 18" x 22" | 29.5" x 24.25" x 30" | 24" x 12" x 30" | N/A |
| 22 | Lowell | Lowell | 86" x 38" x 60"(max height) | 36" x 80" x 7" | 50" x 24" x 30"# | 32" x 18" x 3.5" | 30" x 24" x 30" | N/A | 42" x 76" x 24" |
| 23 | Smith (6100 wing) | Smith | 86" x 38" x 72"(max height) | 36" x 80" x 7" | 44" x 24" x 30"### | 15" x 18" x 22" | N/A | 24" x 12" x 30" | N/A |
Residence Halls Miscellaneous Measurements
| wdt_ID | Residence Hall | Closet Diagram 1 | Closet Diagram 2 | Building | Refrigerator | Freezer | Trash & Recycling Bins | Window Coverings | In-Room Bath Shower Curtain |
|---|---|---|---|---|---|---|---|---|---|
| 1 | Adams | Adams | 14" x 11" x 18.5" | 14" x 11" x 8" | 14" x 10.5" x 15" | Currently unavailable | N/A | ||
| 2 | Barnard | View Diagram | Barnard | 14" x 11" x 18.5" | 14" x 11" x 8" | 14" x 10.5" x 15" | Currently unavailable | N/A | |
| 3 | Bradley | View Diagram | Bradley | 14" x 11" x 18.5" | 14" x 11" x 8" | 14" x 10.5" x 15" | Currently unavailable | N/A | |
| 4 | Chadbourne | View Diagram | Chadbourne | 14" x 11" x 18.5" | 14" x 11" x 8" | 14" x 10.5" x 15" | Currently unavailable | N/A | |
| 5 | Cole | View Diagram | Cole | 14" x 11" x 18.5" | 14" x 11" x 8" | 14" x 10.5" x 15" | Currently unavailable | N/A | |
| 7 | Dejope | View Diagram | View Exterior Diagram | Dejope | 14" x 11" x 18.5" | 14" x 11" x 8" | 14" x 10.5" x 15" | Currently unavailable | N/A |
| 8 | Humphrey | View Diagram | Humphrey | 14" x 11" x 18.5" | 14" x 11" x 8" | 14" x 10.5" x 15" | Currently unavailable | N/A | |
| 9 | Kronshage | View Diagram | View Diagram | Kronshage | 14" x 11" x 18.5" | 14" x 11" x 8" | 14" x 10.5" x 15" | Currently unavailable | N/A |
| 10 | Leopold | View Diagram | View Exterior Diagram | Leopold | 14" x 11" x 18.5" | 14" x 11" x 8" | 14" x 10.5" x 15" | 72" x 48" | N/A |
| 11 | Merit | View Diagram | Merit | 14" x 11" x 18.5" | 14" x 11" x 8" | 14" x 10.5" x 15" | Currently unavailable | Currently unavailable | |
| 12 | Ogg | View Diagram | View Exterior Diagram | Ogg | 14" x 11" x 18.5" | 14" x 11" x 8" | 14" x 10.5" x 15" | Currently unavailable | 36" x 75" |
| 13 | Phillips | Phillips | 14" x 11" x 18.5" | 14" x 11" x 8" | 14" x 10.5" x 15" | Currently unavailable | 40" x 72" | ||
| 14 | Sellery | View Wardrobe Diagram | Sellery | 14" x 11" x 18.5" | 14" x 11" x 8" | 14" x 10.5" x 15" | 2-Window: 80.5" x 45" 3-Window: 121" x 45" |
N/A | |
| 15 | Slichter | View Wardrobe Diagram | Slichter | 14" x 11" x 18.5" | 14" x 11" x 8" | 14" x 10.5" x 15" | Currently unavailable | N/A | |
| 16 | Smith | View Left Diagram | View Right Diagram | Smith | 14" x 11" x 18.5" | 14" x 11" x 8" | 14" x 10.5" x 15" | Single Type B: 58.5" x 71" Others: currently unavailable |
36" x 75" |
| 17 | Sullivan | View Diagram | Sullivan | 14" x 11" x 18.5" | 14" x 11" x 8" | 14" x 10.5" x 15" | Currently unavailable | N/A | |
| 18 | Tripp | Tripp | 14" x 11" x 18.5" | 14" x 11" x 8" | 14" x 10.5" x 15" | Currently unavailable | N/A | ||
| 19 | Waters | View Diagram | Waters | 14" x 11" x 18.5" | 14" x 11" x 8" | 14" x 10.5" x 15" | Currently unavailable | N/A | |
| 20 | Witte | View Wardrobe Diagram | Witte | 14" x 11" x 18.5" | 14" x 11" x 8" | 14" x 10.5" x 15" | Currently unavailable | N/A | |
| 21 | Jorns | View Diagram | Jorns | 14" x 11" x 18.5" | 14" x 11" x 8" | 14" x 10.5" x 15" | Currently unavailable | N/A | |
| 22 | Lowell | View Wardrobe Diagram | Lowell | 14" x 11" x 18.5" | 14" x 11" x 8" | 14" x 10.5" x 15" | Currently unavailable | Currently unavailable |
Residence Halls Lofting Measurements
| wdt_ID | Building | |||||
|---|---|---|---|---|---|---|
| wdt_ID | Residence Hall | Building | Bed Height# | Space Under Bed | Space Between Bed & Ceiling | Length Under Lofted Bed |
| 1 | Adams | Adams | Lofted: 64" Mid-Loft: 33" Standard: 26" |
Lofted: 54" Mid-Loft: 22.75" Standard: 15.75" |
Lofted: 31" Mid-Loft: 63.25" Standard: 69.5" |
Futon ≤ 79" long will fit |
| 2 | Barnard | Barnard | Lofted: 64" Mid-Loft: 33" Standard: 26" |
Lofted: 54" | Currently unavailable | Futon ≤ 79" long will fit |
| 3 | Bradley | Bradley | Lofted: 66" Mid-Loft: 41" Standard: 25" |
Lofted: 56" Mid-Loft: 31" Standard: 16" |
Lofted: 26" Mid-Loft: 51" Standard: 25" |
Futon ≤ 79" long will fit |
| 4 | Chadbourne | Chadbourne | Lofted: 65"-80" Mid-Loft: 42" Standard: 26" |
Lofted: 54"-69" Mid-Loft: 30" Standard: 16" |
Currently unavailable | Futon ≤ 79" long will fit |
| 5 | Cole | Cole | Lofted: 71" Mid-Loft: 62" Standard: 26" |
Lofted: 61.25" Mid-Loft: 52.25" Standard: 16" |
Lofted: 21" Mid-Loft: 30" Standard: 66" |
Futon ≤ 79" long will fit |
| 7 | Dejope | Dejope | Lofted: 78" Mid-Loft: 40" Standard: 28" |
Lofted: 68" Mid-Loft: 30" Standard: 16" |
Lofted: 50" Mid-Loft: 87" Standard: 99" |
Futon ≤ 79" long will fit |
| 8 | Humphrey | Humphrey | Lofted: 64" Mid-Loft: 43" Standard: 25" |
Lofted: 54.25" Mid-Loft: 33.25" Standard: 15.25" |
Lofted: 32" Mid-Loft: 53" Standard: 71" |
Futon ≤ 79" long will fit |
| 9 | Kronshage | Kronshage | Lofted: 64" Mid-Loft: 43" Standard: 25" |
Lofted: 54.25" Mid-Loft: 33.25" Standard: 15.25" |
Lofted: 32" Mid-Loft: 53" Standard: 71" |
Futon ≤ 79" long will fit |
| 10 | Leopold | Leopold | Lofted: 79" Mid-Loft: 67" Standard: 26" |
Lofted: 69" Mid-Loft: 57" Standard: 16" |
Lofted: 46" Mid-Loft: 58" Standard: 99" |
Futon ≤ 79" long will fit |
| 11 | Merit | Merit | Lofted: 64" - 73" Mid-Loft: 41" Standard: 26" |
Lofted: 54" - 69" Mid-Loft: 31" Standard: 16" |
Lofted: 20" - 32" Mid-Loft: 55" Standard: 70" |
Futon ≤ 79" long will fit |
| 12 | Ogg | Ogg | Lofted: 65" - 80" Mid-Loft: 42" Standard: 26" |
Lofted: 54" - 69" Mid-Loft: 30" Standard: 16" |
Lofted: 32" - 47" Mid-Loft: 69" Standard: 85" |
Futon ≤ 79" long will fit |
| 13 | Phillips | Phillips | Lofted: 64" Mid-Loft: 40" Standard: 27" |
Lofted: 54" Mid-Loft: 31" Standard: 15" |
Lofted: 26" Mid-Loft: 53" Standard: 65" |
Futon ≤ 79" long will fit |
| 14 | Sellery | Sellery | Lofted: 64" Mid-Loft: 38.5" Standard: 26.5" |
Lofted: 54" Mid-Loft: 28.5" Standard: 16.5" |
Lofted: 30" Mid-Loft: 55.5" Standard: 67.5" |
Futon ≤ 79" long will fit |
| 15 | Slichter | Slichter | Lofted: 64" Mid-Loft: 33" Standard: 26" |
Lofted: 54" Mid-Loft: 22.75" Standard: 15.75" |
Lofted: 31" Mid-Loft: 63.25" Standard: 69.5" |
Futon ≤ 79" long will fit |
| 16 | Smith | Smith | Lofted: 64" - 79" Mid-Loft: 41" Standard: 28" |
Lofted: 54" - 69" Mid-Loft: 31" Standard: 16" |
Lofted: 52" - 63" Mid-Loft: 85" Standard: 100" |
Futon ≤ 79" long will fit |
| 17 | Sullivan | Sullivan | Lofted: 71" Mid-Loft: 62" Standard: 26" |
Lofted: 61.25" Mid-Loft: 52.25" Standard: 16" |
Lofted: 21" Mid-Loft: 30" Standard: 66" |
Futon ≤ 79" long will fit |
| 18 | Tripp | Tripp | Lofted: 64" Mid-Loft: 33" Standard: 26" |
Lofted: 54" Mid-Loft: 33" Standard: 26" |
Lofted: 31" Mid-Loft: 63.25" Standard: 69.5" |
Futon ≤ 79" long will fit |
| 19 | Waters | Waters | Lofted: 81" Mid-Loft: 65" Standard: 24" |
Lofted: Currently unavailable Mid-Loft: Currently unavailable Standard: Currently unavailable |
Lofted: 21" Mid-Loft: 37" Standard: 78" |
Futon ≤ 56" long will fit |
| 20 | Witte | Witte | Lofted: 64" Mid-Loft: 38.5" Standard: 26.5" |
Lofted: 54" Mid-Loft: 28.5" Standard: 16.5" |
Lofted: 30" Mid-Loft: 55.5" Standard: 67.5" |
Futon ≤ 79" long will fit |
| 21 | Jorns | Jorns | Lofted: 64" Mid-Loft: 43" Standard: 25" |
Lofted: 54.25" Mid-Loft: 33.25" Standard: 15.25" |
Lofted: 32" Mid-Loft: 53" Standard: 71" |
Futon ≤ 79" long will fit |
| 22 | Lowell | Lowell | Lofted: 64" Mid Loft: 33" Standard: 26" |
Lofted: 54" | Currently unavailable | Futon ≤ 79" long will fit |
Note: rooms in some residence halls have mixed furniture. Measurements and dimensions may vary. Due to the variety of residence halls, rooms, furniture, closets, etc. in University Housing, we are unable to provide measurements for all possible situations and items. If the measurement you’re looking for isn’t shown on our website, we are unable to provide it at this time. Measurements for all residence halls can be found on the Inside Our Rooms page.
Rates
The projected annual rates listed below are per resident and include housing during fall and spring breaks (winter break housing is available for an additional fee). Most new residents are assigned to a double room. Costs are billed by semester, combined with the tuition bill. Students select from one of three dining plan options based on their eating habits and how much they plan to dine on campus. For a full listing of residence hall rates and what is included, visit our Billing & Rates page.
Total costs of UW–Madison University Residence Halls room and dining plan rates can be calculated by:
- [Room Rate] + [Dining Plan Rate] = Total Room & Board Costs
| Residence Hall | Building | Room Type | Learning Community | 2025-26 Room Rate / Semester | 2025-26 Room Rate / Academic Year |
|---|---|---|---|---|---|
| Residence Hall | Building | Room Type | Learning Community | 2025-26 Room Rate / Semester | 2025-26 Room Rate / Academic Year |
| Adams | Adams | Single Type A | 4,400.00 | 8,800.00 | |
| Adams | Adams | Single Type B | 4,100.00 | 8,200.00 | |
| Adams | Adams | Double Type A | 4,200.00 | 8,400.00 | |
| Adams | Adams | Double Type B | 3,800.00 | 7,600.00 | |
| Adams | Adams | Triple | 3,550.00 | 7,100.00 | |
| Barnard | Barnard | Single | 4,400.00 | 8,800.00 | |
| Barnard | Barnard | Double Type A | 3,900.00 | 7,800.00 | |
| Barnard | Barnard | Double Type B | 4,200.00 | 8,400.00 | |
| Barnard | Barnard | Double with Bath | 4,350.00 | 8,700.00 | |
| Bradley | Bradley | Double | 3,800.00 | 7,600.00 | |
| Bradley | Bradley | Double | Spark | 3,925.00 | 7,850.00 |
| Bradley | Bradley | Quad | 3,550.00 | 7,100.00 | |
| Bradley | Bradley | Quad | Spark | 3,675.00 | 7,350.00 |
| Chadbourne | Chadbourne | Double | CRC | 4,225.00 | 8,450.00 |
| Chadbourne | Chadbourne | Triple | CRC | 3,825.00 | 7,650.00 |
| Cole | Cole | Single | 4,400.00 | 8,800.00 | |
| Cole | Cole | Double | 3,800.00 | 7,600.00 | |
| Cole | Cole | Double | BioHouse | 3,925.00 | 7,850.00 |
| Cole | Cole | Quad | BioHouse | 3,675.00 | 7,350.00 |
| Dejope | Dejope | Double | 4,400.00 | 8,800.00 | |
| Dejope | Dejope | Triple | 3,750.00 | 7,500.00 | |
| Dejope | Dejope | Quad | 3,750.00 | 7,500.00 | |
| Humphrey | Humphrey | Double | 3,800.00 | 7,600.00 | |
| Jorns | Jorns | Double | 3,800.00 | 7,600.00 | |
| Kronshage | Kronshage | Double | 3,800.00 | 7,600.00 | |
| Kronshage | Kronshage | Double | ILC | 3,925.00 | 7,850.00 |
| Leopold | Leopold | Double | 4,400.00 | 8,800.00 | |
| Leopold | Leopold | Double | GreenHouse | 4,525.00 | 9,050.00 |
| Leopold | Leopold | Triple | 3,750.00 | 7,500.00 | |
| Leopold | Leopold | Triple | GreenHouse | 3,875.00 | 7,750.00 |
| Leopold | Leopold | Quad | 3,750.00 | 7,500.00 | |
| Lowell | Lowell | Single with Bath | 4,950.00 | 9,900.00 | |
| Lowell | Lowell | Single with Shared Bath | 4,200.00 | 8,400.00 | |
| Lowell | Lowell | Double with Bath | 4,500.00 | 9,000.00 | |
| Lowell | Lowell | Double with Shared Bath | 3,800.00 | 7,600.00 | |
| Lowell | Lowell | Triple with Bath Type A | 4,100.00 | 8,200.00 | |
| Lowell | Lowell | Triple with Bath Type B | 3,900.00 | 7,800.00 | |
| Merit | Merit | Single | 4,100.00 | 8,200.00 | |
| Merit | Merit | Double with Bath | 4,350.00 | 8,700.00 | |
| Merit | Merit | Triple with Bath | 3,900.00 | 7,800.00 | |
| Ogg | Ogg | Double with Bath | 4,500.00 | 9,000.00 | |
| Ogg | Ogg | Double with Bath | Business Connect | 4,500.00 | 9,000.00 |
| Ogg | Ogg | Triple | 3,750.00 | 7,500.00 | |
| Ogg | Ogg | Triple | Business Connect | 3,750.00 | 7,500.00 |
| Phillips | Phillips | Single with Bath | 4,500.00 | 9,000.00 | |
| Phillips | Phillips | Single with Bath | Open House | 4,625.00 | 9,250.00 |
| Phillips | Phillips | Double with Bath | 4,350.00 | 8,700.00 | |
| Phillips | Phillips | Double with Bath | Open House | 4,475.00 | 8,950.00 |
| Sellery | Sellery | Single | 4,400.00 | 8,800.00 | |
| Sellery | Sellery | Single | StartUp | 4,525.00 | 9,050.00 |
| Sellery | Sellery | Double | 4,200.00 | 8,400.00 | |
| Sellery | Sellery | Double | StartUp | 4,325.00 | 8,650.00 |
| Sellery | Sellery | Double | The Studio | 4,337.50 | 8,675.00 |
| Sellery | Sellery | Triple | 4,050.00 | 8,100.00 | |
| Sellery | Sellery | Triple | StartUp | 4,175.00 | 8,350.00 |
| Sellery | Sellery | Triple | The Studio | 4,187.50 | 8,375.00 |
| Sellery | Sellery | Quad | 3,750.00 | 7,500.00 | |
| Sellery | Sellery | Quad | StartUp | 3,875.00 | 7,750.00 |
| Slichter | Slichter | Double | 3,800.00 | 7,600.00 | |
| Slichter | Slichter | Double with Bath | 4,350.00 | 8,700.00 | |
| Smith | Smith | Single Type A | 4,800.00 | 9,600.00 | |
| Smith | Smith | Single Type B | 4,400.00 | 8,800.00 | |
| Smith | Smith | Single with Bath | 4,950.00 | 9,900.00 | |
| Smith | Smith | Double Type A | 4,400.00 | 8,800.00 | |
| Smith | Smith | Double Type B | 4,100.00 | 8,200.00 | |
| Smith | Smith | Double with Bath | 4,500.00 | 9,000.00 | |
| Smith | Smith | Triple | 3,750.00 | 7,500.00 | |
| Sullivan | Sullivan | Double | 3,800.00 | 7,600.00 | |
| Sullivan | Sullivan | Quad | 3,550.00 | 7,100.00 | |
| Tripp | Tripp | Single Type A | 4,400.00 | 8,800.00 | |
| Tripp | Tripp | Single Type B | 4,100.00 | 8,200.00 | |
| Tripp | Tripp | Double Type B | 3,800.00 | 7,600.00 | |
| Tripp | Tripp | Triple | 3,550.00 | 7,100.00 | |
| Waters | Waters | Single | 4,400.00 | 8,800.00 | |
| Waters | Waters | Single | WISE | 4,525.00 | 9,050.00 |
| Waters | Waters | Single with Bath | WISE | 4,625.00 | 9,250.00 |
| Waters | Waters | Double | 3,900.00 | 7,800.00 | |
| Waters | Waters | Double | WISE | 4,025.00 | 8,050.00 |
| Waters | Waters | Double with Bath | 4,350.00 | 8,700.00 | |
| Witte | Witte | Single | 4,400.00 | 8,800.00 | |
| Witte | Witte | Single | MLC | 4,525.00 | 9,050.00 |
| Witte | Witte | Double | 4,200.00 | 8,400.00 | |
| Witte | Witte | Double | MLC | 4,325.00 | 8,650.00 |
| Witte | Witte | Quad | 3,750.00 | 7,500.00 | |
| Witte | Witte | Quad | MLC | 3,875.00 | 7,750.00 |
| wdt_ID | Dining Plan | 2025-26 Dining Plan Rate / Semester | 2025-26 Dining Plan Rate / Academic Year |
|---|---|---|---|
| 1 | Go10 | 2,050 | 4,100 |
| 2 | Go14 | 2,300 | 4,600 |
| 3 | GoUnlimited | 2,900 | 5,800 |
Photos









Note: rooms in some residence halls have mixed furniture. Furniture, measurements, and dimensions may vary from what is shown.
Heating & Cooling
In Smith, air-conditioning and heating can be used in either the heating or the cooling season. Air-conditioning is available only when the outside temperature is above 50° F and is provided via chilled water that blows cold air through a wall vent. Your room’s temperature can be set from 65 – 75 °F and is controlled via a thermostat located on the wall (see photo). Temperature is controlled by a bar on the right side of the thermostat. Sliding the bar up will warm the room, while sliding it down will cool the room.

Tips
- Try small adjustments first to avoid overheating/cooling
- Do not push furniture, bedding, or belongings against convectors as this could block airflow
- When in your room during the heating season, open curtains and blinds during the day to allow the sun to warm the room naturally and prevent air from being trapped against the window, and close them at night to decrease drafts — during the cooling season, do the reverse
- Keep doors and windows closed when the heat or air conditioning is on
- Consider using blankets and sweaters instead of turning up the heat
- Open windows slightly for short periods of time to allow outside air to circulate
- When possible, keep the room door open to promote air movement and introduce fresh air
- Take wet clothing or towels to a laundry room to be washed/dried ASAP to reduce moisture
- Run a fan to help circulate air
- Fish tanks, plants, humidifiers, and diffusers can contribute to humidity/moisture levels in your room
- Know how to use Moisture Absorbing Hangers in your room and make sure to replace them when they’re full. More information can be found in this document about Using Moisture Absorbing Hangers in Your Room